Добро пожаловать на http://vipplan.ru

Випплан Кингисепп - это тысячи проектов домов в нашем каталоге!

Вы всегда сможете найти для себя проект дома вашей мечты! Даже если этого не случилось, мы готовы в любую минуту предложить проект индивидуального дома.

Забыли пароль?
Вы еще не регистрировались?

Перейдите по ссылке ниже на страницу регистрации.

Регистрация...

Внимание!!!

В проектную документацию могут быть внесены изменения любой сложности, в соответствии в Вашими пожеланиями!

Полезные статьи

Монолитный коттедж с несъемной опалубкой

Перед тем, как вы задумаетесь о строительстве своего коттеджа, необходимо выбрать, сами вы будете руководить строительством, нанимать разных рабочих, или будете обращаться в строительную фирму, и заключать с ними договор. Но даже к этому вопросу нужно подходить правильно, обдумав все плюсы и минусы выбора....

Окна в доме

От хорошего стеклопакета зависит почти 50% теплостойкости всего дома. Ведь на проемы в окнах приходится до 45% тепловых потерь дома. Поэтому хорошие стеклопакеты не пропускают тепло из комнаты и должны противостоять проникновению ветра, влаги и холода с наружной стороны....

Проекты домов и коттеджей > Каталог проектов домов > Дом с террасой и мансардой Vg1014

Дом с террасой и мансардой Vg1014

Дом с террасой и мансардой
Зарегистрируйтесь

Проект № Vg1014


Техническое описание
Общая площадь: 165 м2
Жилая площадь: 107 м2
Высота здания: 10 м
Размеры дома: 9м×16м
Кол-во комнат: 6
Цокольный этаж: нет
Гараж: нет
Мансарда: есть

Kонструкция
Фундамент: Щелевой
Перекрытия: Деревянные балки
Материал стен: Бетонные блоки

Архитектурный раздел
Конструктивный раздел
АР+КР - 56 000 (Со скидкой 20%)
Проект индивидуального однотажного жилого дома с мансардой с размерами здания 8,92 x 15,78 м. Наружная отделка здания – облицовочный кирпич. Фундамент –стена в грунте (щелевой). Наружные стены – керамзитобетонные блоки Внутренние стены - керамзитобетонные блоки, с утеплением экструдированным пенополистиролом, воздушным зазором и облицовочным кирпичом. Перегородки 1 этажа - кирпич 120 мм, мансарды - каркасные с ГКЛ на металлическом каркасе. Пол первого этажа -ж/б плиты перекрытия. Межэтажное перекрытие - деревянные балки с теплошумоизоляцией типа "URSA" в межбалочном пространстве. Крыша – металлочерепица. Кровля – двухскатая. Окна - металлопластиковые, выполненные по индивидуальному заказу.
Генплан застройки участка / Паспорт проекта 7000 руб / 10000 руб
Инженерный раздел (полный) 82500 руб
Смета на строительство 41250 руб
Теплотехнический расчет материалов стен Бесплатно
Стоимость проекта со незначительнми изменениями 65850 руб
Стоимость проекта со средними изменениями* 78300 руб
Стоимость проекта со значительными изменениями** 81600 руб

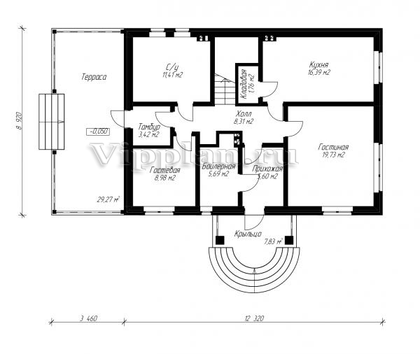
План первого этажа


Тамбур — 3,42 м2
Холл — 8,31 м2
Гостиная — 19,73 м2
Гостевая — 8,98 м2
Прихожая — 5,60 м2
С/у — 11,41 м2
Кладовая — 1,76 м2
Бойлерная — 5,69 м2

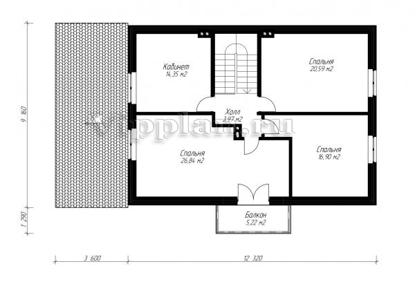
План мансардного этажа


Холл — 3,97 м2
Кабинет — 14,35 м2
Спальня — 20,59 м2
Спальня — 16,90 м2
Спальня — 26,84 м2
Балкон — 5,22 м2
Дом с террасой и мансардой Дом с террасой и мансардой Дом с террасой и мансардой Дом с террасой и мансардой

Модификации проектов

Внесение изменений и привязка к участку строительства

В любой из проектов от компании VIPplan - Кингисепп по вашему желанию могут быть внесены изменения в материалы стен, материалы наружной отделки дома, а также будет произведена адаптация проекта под конкретный регион строительства (с учетом грунтов региона, геологических особенностей вашего участка и местных климатических условий) - БЕСПЛАТНО !!! (кроме проектов со скидкой и проектов наших партнеров).

Любой из проектов, размещенных на сайте kingisepp.vipplan.ru мы можем выполнить из требуемых вам строительных материалов: ячеистый бетон (газобетон, пеноблок), керамоблок, кирпич, шлакоблок, бетонный блок, дерево (брус, клееный брус), каркасная технология (деревянный каркас, металлокаркас (ЛСТК)).

Фасад дома и его наружную отделку так же возможно выполнить с применением различных облицовочных материалов: структурной штукатурки, (с утеплителем и без), сайдингом (пластиковый или металлосайдинг), фиброплитами, кирпича.

 
6 Избранные
проекты

Доставка проектов по России: Москва (Московская область), Санкт-Петербург (Ленинградская область), Краснодар, Ростов-на-Дону, Ставрополь, Сочи, Волгоград, Новосибирск, Белгород, Брянск, Воронеж, Саратов, Хабаровск, Астрахань, Нальчик, Владикавказ, Екатеринбург, Тюмень, Самара, Нижний Новгород, Казань, Пермь, Уфа, Челябинск, Красноярск, Ханты-Мансийск, Иркутск, Курган, Оренбург, Омск, Томск, Барнаул, Новокузнецк, Кемерово, Абакан, Чита, Якутск, Южно-Сахалинск, Петропавловск-Камчатский и страны ближнего зарубежья: Белоруссия, Украина, Казахстан