Добро пожаловать на http://vipplan.ru

Випплан Кингисепп - это тысячи проектов домов в нашем каталоге!

Вы всегда сможете найти для себя проект дома вашей мечты! Даже если этого не случилось, мы готовы в любую минуту предложить проект индивидуального дома.

Забыли пароль?
Вы еще не регистрировались?

Перейдите по ссылке ниже на страницу регистрации.

Регистрация...

Внимание!!!

В проектную документацию могут быть внесены изменения любой сложности, в соответствии в Вашими пожеланиями!

Полезные статьи

Где копать колодец?

Водоснабжение за городом - Кингисепп всегда было проблематичным. При отсутствии центрального водоснабжения остается только один выход – выкопать колодец. Водоносный пласт есть не везде. Как же определить, где копать колодец?...

Перекрытия в доме

Перекрытия – одно из важнейших составляющих строящегося дома. Это горизонтальная внутренняя защитная конструкция, разделяющая по уровню смежные помещения дома. По назначению выделяют подвальные, межэтажные и чердачные перекрытия. При проектировании домов и зданий различного назначения, требования к межэтажным перекрытиям определяются их местоположением и функциями разделяемых помещений: надподвальные, межэтажные, чердачные и т.д....

Проекты домов и коттеджей > Каталог проектов домов > Проект одноэтажного дома с чердаком Vg1024

Проект одноэтажного дома с чердаком Vg1024

Проект одноэтажного дома с чердаком
Зарегистрируйтесь

Проект № Vg1024


Техническое описание
Общая площадь: 154.22 м2
Жилая площадь: 54.6 м2
Высота здания: 8.35 м
Размеры дома: 13.16м×9.36м
Кол-во комнат: 3
Цокольный этаж: нет
Гараж: нет
Мансарда: нет

Kонструкция
Фундамент: Монолитная ж/б плита
Перекрытия: Деревянные балки
Материал стен: Керамоблок

Архитектурный раздел
Конструктивный раздел
Инженерный раздел
АР+КР - 56 000 (Со скидкой 20%)
АР+КР+ИР - 109 900 (Со скидкой 50%)
Проект индивидуального одноэтажного жилого дома с чердаком с размерами 13.16 x 9.36 м. Наружная отделка здания – облицовочный кирпич. Отделка цоколя – клинкерный кирпич. Фундамент – монолитная ж/б плита (под всей площадью дома). Наружные стены запроектированы из керамических блоков с воздушным зазором и отделкой облицовочным кирпичом. Внутренние стены – из керамических блоков. Перегородки – из керамических блоков. Пол 1-го этажа и пол чердака – пол по деревянным балкам с использованием теплошумоизоляционных материалов. Перемычки - из керамического П-образного профиля и из профиля проката. Крыша - четырехскатная. Материал кровли – битумная черепица. Окна - металлопластиковые, выполненные по индивидуальному заказу. Лестница — выполненная по индивидуальному заказу.
Генплан застройки участка / Паспорт проекта 7000 руб / 10000 руб
Инженерный раздел (полный) 53900 руб (77000 руб)
Смета на строительство 38500 руб
Теплотехнический расчет материалов стен Бесплатно
Стоимость проекта со незначительнми изменениями 66150 руб
Стоимость проекта со средними изменениями* 77700 руб
Стоимость проекта со значительными изменениями** 80800 руб

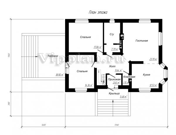
План первого этажа


Прихожая - 2,63 м2
Холл - 9,64 м2
Кладовая - 1,15 м2
Гостиная - 23,19 м2
Кухня - 12,53 м2
Спальня - 14,36 м2
Спальня - 17,06 м2
С/у - 7,79 м2
Проект одноэтажного дома с чердаком Проект одноэтажного дома с чердаком Проект одноэтажного дома с чердаком Проект одноэтажного дома с чердаком

Модификации проектов

Внесение изменений и привязка к участку строительства

В любой из проектов от компании VIPplan - Кингисепп по вашему желанию могут быть внесены изменения в материалы стен, материалы наружной отделки дома, а также будет произведена адаптация проекта под конкретный регион строительства (с учетом грунтов региона, геологических особенностей вашего участка и местных климатических условий) - БЕСПЛАТНО !!! (кроме проектов со скидкой и проектов наших партнеров).

Любой из проектов, размещенных на сайте kingisepp.vipplan.ru мы можем выполнить из требуемых вам строительных материалов: ячеистый бетон (газобетон, пеноблок), керамоблок, кирпич, шлакоблок, бетонный блок, дерево (брус, клееный брус), каркасная технология (деревянный каркас, металлокаркас (ЛСТК)).

Фасад дома и его наружную отделку так же возможно выполнить с применением различных облицовочных материалов: структурной штукатурки, (с утеплителем и без), сайдингом (пластиковый или металлосайдинг), фиброплитами, кирпича.

 
6 Избранные
проекты

Доставка проектов по России: Москва (Московская область), Санкт-Петербург (Ленинградская область), Краснодар, Ростов-на-Дону, Ставрополь, Сочи, Волгоград, Новосибирск, Белгород, Брянск, Воронеж, Саратов, Хабаровск, Астрахань, Нальчик, Владикавказ, Екатеринбург, Тюмень, Самара, Нижний Новгород, Казань, Пермь, Уфа, Челябинск, Красноярск, Ханты-Мансийск, Иркутск, Курган, Оренбург, Омск, Томск, Барнаул, Новокузнецк, Кемерово, Абакан, Чита, Якутск, Южно-Сахалинск, Петропавловск-Камчатский и страны ближнего зарубежья: Белоруссия, Украина, Казахстан