Добро пожаловать на http://vipplan.ru

Випплан Кингисепп - это тысячи проектов домов в нашем каталоге!

Вы всегда сможете найти для себя проект дома вашей мечты! Даже если этого не случилось, мы готовы в любую минуту предложить проект индивидуального дома.

Забыли пароль?
Вы еще не регистрировались?

Перейдите по ссылке ниже на страницу регистрации.

Регистрация...

Внимание!!!

В проектную документацию могут быть внесены изменения любой сложности, в соответствии в Вашими пожеланиями!

Полезные статьи

Сборные фундаменты

В наше время все большую популярность при строительстве дома приобретают сборные бетонные и железобетонные блоки. Их использование значительно сокращает время работ и снижает их трудоемкость....

Дом это прекрасное вложение

Современный рынок недвижимости диктует свои правила. Цены на землю и недвижимость в Кингисеппе постоянно растут и вынуждают по-другому смотреть на покупку собственного дома. Не только со стороны получения удобного, благоустроенного жилья, но и со стороны капитализации и инвестировании своих средств...

Проекты домов и коттеджей > Каталог проектов домов > Проект двухэтажного дома на склоне Vg1033

Проект двухэтажного дома на склоне Vg1033

Проект двухэтажного дома на склоне
Зарегистрируйтесь

Проект № Vg1033


Техническое описание
Общая площадь: 257.3 м2
Жилая площадь: 107.26 м2
Высота здания: 9.82 м
Размеры дома: 21.18м×16.68м
Цокольный этаж: нет
Гараж: нет
Мансарда: нет

Kонструкция
Фундамент: ленточный монолитный ж/б
Перекрытия: монолитная ж/б плита
Материал стен: Бетонные блоки

Архитектурный раздел
Конструктивный раздел
АР+КР - 72 000 (Со скидкой 20%)
Проект индивидуального двухэтажного жилого дома с размерами здания 21,18 х 16,68 м. Наружная отделка здания – фасадная штукатурка. Фундамент – ленточный монолитный (под несущими стенами). Наружные стены – керамзитобетонные блоки с утеплением минералиной ватой и отделкой штукатуркой. Монолинтый ж/б каркас. Внутренние стены - керамзитобетонные блоки. Перегородки – керамзитобетонные блоки. Пол первого этажа- пол по грунту. Межэтажное перекрытие –монолитная ж/б плита.Чердачное перекрытие - деревянные балки. Крыша битумная черепица Кровля – многоскатная. Окна - металлопластиковые, выполненные по индивидуальному заказу.
Генплан застройки участка / Паспорт проекта 7000 руб / 10000 руб
Инженерный раздел (полный) 128500 руб
Смета на строительство 64250 руб
Теплотехнический расчет материалов стен Бесплатно
Стоимость проекта со незначительнми изменениями 83550 руб
Стоимость проекта со средними изменениями* 102900 руб
Стоимость проекта со значительными изменениями** 108000 руб

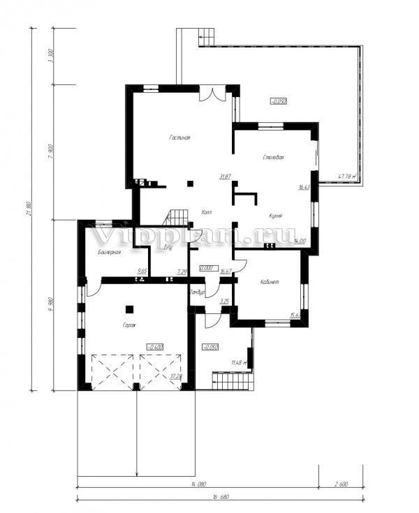
План первого этажа


Тамбур — 3,25 кв м
Холл — 16,67 кв м
Гостиная — 31,87 кв м
Столовая — 16,43 кв м
Кабинет — 15,63 кв м
Кухня — 14 кв м
С/у — 7,29 кв м
Бойлерная - 9,65 кв м
Гараж — 37,28 кв м

Проект двухэтажного дома на склоне

Проект двухэтажного дома на склоне

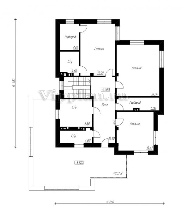
План второго этажа


Холл — 16,50 кв м
Спальня — 19,99 кв м
Гардероб — 5,63 кв м
С/у — 4,66 кв м
Спальня — 24,14 кв м
Гардероб — 5,98 кв м
Спальня — 15,63 кв м
С/у — 4,60 кв м
С/у — 9,80 кв м
Проект двухэтажного дома на склоне Проект двухэтажного дома на склоне Проект двухэтажного дома на склоне Проект двухэтажного дома на склоне
Внесение изменений и привязка к участку строительства

В любой из проектов от компании VIPplan - Кингисепп по вашему желанию могут быть внесены изменения в материалы стен, материалы наружной отделки дома, а также будет произведена адаптация проекта под конкретный регион строительства (с учетом грунтов региона, геологических особенностей вашего участка и местных климатических условий) - БЕСПЛАТНО !!! (кроме проектов со скидкой и проектов наших партнеров).

Любой из проектов, размещенных на сайте kingisepp.vipplan.ru мы можем выполнить из требуемых вам строительных материалов: ячеистый бетон (газобетон, пеноблок), керамоблок, кирпич, шлакоблок, бетонный блок, дерево (брус, клееный брус), каркасная технология (деревянный каркас, металлокаркас (ЛСТК)).

Фасад дома и его наружную отделку так же возможно выполнить с применением различных облицовочных материалов: структурной штукатурки, (с утеплителем и без), сайдингом (пластиковый или металлосайдинг), фиброплитами, кирпича.

 
6 Избранные
проекты

Доставка проектов по России: Москва (Московская область), Санкт-Петербург (Ленинградская область), Краснодар, Ростов-на-Дону, Ставрополь, Сочи, Волгоград, Новосибирск, Белгород, Брянск, Воронеж, Саратов, Хабаровск, Астрахань, Нальчик, Владикавказ, Екатеринбург, Тюмень, Самара, Нижний Новгород, Казань, Пермь, Уфа, Челябинск, Красноярск, Ханты-Мансийск, Иркутск, Курган, Оренбург, Омск, Томск, Барнаул, Новокузнецк, Кемерово, Абакан, Чита, Якутск, Южно-Сахалинск, Петропавловск-Камчатский и страны ближнего зарубежья: Белоруссия, Украина, Казахстан