Добро пожаловать на http://vipplan.ru

Випплан Кингисепп - это тысячи проектов домов в нашем каталоге!

Вы всегда сможете найти для себя проект дома вашей мечты! Даже если этого не случилось, мы готовы в любую минуту предложить проект индивидуального дома.

Забыли пароль?
Вы еще не регистрировались?

Перейдите по ссылке ниже на страницу регистрации.

Регистрация...

Внимание!!!

В проектную документацию могут быть внесены изменения любой сложности, в соответствии в Вашими пожеланиями!

Полезные статьи

Зачем нужен проект дома?

Зачем нужен проект? - спросите вы. Проект дома является важной и неотъемлемой частью при строительстве дома. После покупки проекта, вы получите разрешение на строительство, предоставив его в местную архитектуру, а после, с его помощью, построите дом....

Печи и камины в частном доме

Спросите любого человека, и вы поймете, что каждый человек мечтает иметь свой собственный дом, который он сможет обустроить так, как ему хочется. Этот дом будет полон уюта, тепла, света и комфорта, а главное, что, придя с работы, человек сможет запросто отдохнуть у своего очага.  Нет никакой альтернативы перед выбором печи или камина. Эти две вещи не сможет  заменить ни искусственный свет, ни солнечное освещение. Камин и печь, с древности, считаются предметом роскоши. Ни один большой дом не может обойтись без них, поскольку если удастся сесть и посидеть перед этим местом, то долго нельзя будет...

Проекты домов и коттеджей > Каталог проектов домов > Одноэтажный дом с мансардой, эркером, террасой и балконами Vg1113

Одноэтажный дом с мансардой, эркером, террасой и балконами Vg1113

Одноэтажный дом с мансардой, эркером, террасой и балконами
Зарегистрируйтесь

Проект № Vg1113


Техническое описание
Общая площадь: 198.72 м2
Жилая площадь: 82.2 м2
Высота здания: 9.53 м
Размеры дома: 9.2м×9.4м
Кол-во комнат: 5
Цокольный этаж: есть
Гараж: нет
Мансарда: есть

Kонструкция
Фундамент: Блоки ФБС
Перекрытия: Сборные ж/б плиты
Материал стен: Газобетон

Архитектурный раздел
Конструктивный раздел
АР+КР - 60 000 (Со скидкой 20%)
Проект индивидуального одноэтажного жилого дома с подвалом и мансардой с размерами здания 9,20x9,40м. Наружная отделка здания - облицовочный кирпич. Обрамление оконных и дверных проемов-облицовочный кирпич. Цоколь - отделка клинкерной плиткой. Отделка вентканалов и дымоходов - облицовочный кирпич. Фундамент - блоки ФБС. Фундамент "стена в грунте" (щелевой) - под крыльцом и террасой. Наружные стены дома: газобетонные блоки, экструдированный пенополистирол, воздушный зазор, облицовочный кирпич. Внутренние стены - из газобетонных блоков. Перегородки выполнить из: - Газобетонных блоков; - Кирпича; - ГКЛ на металлическом каркасе с использованием теплошумоизоляционных материалов в межкаркасном пространстве. Пол подвального этажа - пол по грунту. Пол первого этажа - сборные ж/б плиты перекрытия. Пол мансарды - по деревянным балкам с использованием теплошумоизоляционных материалов типа "URSA" в межбалочном пространстве. Потолок мансардного этажа - по затяжкам стропильной системы. Отделка вентканалов и дымоходов - облицовочный кирпич. Перемычки - монолитные и сварные из профиля проката. Крыша - многоскатная. Покрытие - металлочерепица. Окна - металлопластиковые, выполненные по индивидуальному заказу. Лестница -выполняется по индивидуальному заказу.
Генплан застройки участка / Паспорт проекта 7000 руб / 10000 руб
Инженерный раздел (полный) 99500 руб
Смета на строительство 49750 руб
Теплотехнический расчет материалов стен Бесплатно
Стоимость проекта со незначительнми изменениями 70000 руб
Стоимость проекта со средними изменениями* 85000 руб
Стоимость проекта со значительными изменениями** 88900 руб

План цокольного этажа


Помещение 1 — 7,95 кв м
Холл — 8,71 кв м
Бойлерная — 4,31 кв м
Помещение 2 — 12,11 кв м
Помещение 3 — 24,88 кв м
Помещение 4 — 9,47 кв м

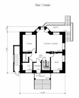
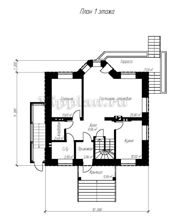
План первого этажа


Крыльцо — 5,58 кв м
Прихожая — 3,06 кв м
С/у — 3,90 кв м
Кладовая — 2,48 кв м
Кухня — 10,02 кв м
Холл — 9,06 кв м
Гостиная — 25,80 кв м
Спальня — 11,69 кв м
Терраса — 7,59 кв м

Одноэтажный дом с мансардой, эркером, террасой и балконами

Одноэтажный дом с мансардой, эркером, террасой и балконами

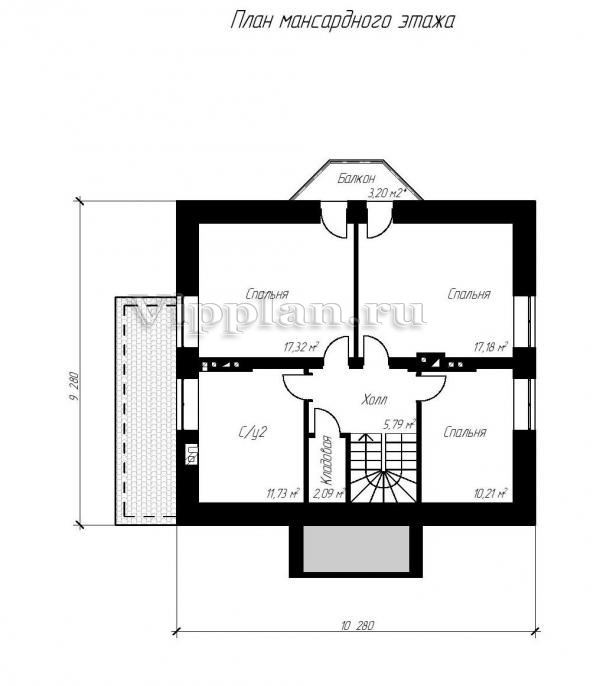
План второго этажа


Спальня — 10,21 кв м
С/у — 11,73 кв м
Спальня — 17,32 кв м
Холл — 5,79 кв м
Кладовая — 2,09 кв м
Спальня — 17,18 кв м
Балкон — 3,20 кв м
Одноэтажный дом с мансардой, эркером, террасой и балконами Одноэтажный дом с мансардой, эркером, террасой и балконами Одноэтажный дом с мансардой, эркером, террасой и балконами Одноэтажный дом с мансардой, эркером, террасой и балконами

Модификации проектов

Внесение изменений и привязка к участку строительства

В любой из проектов от компании VIPplan - Кингисепп по вашему желанию могут быть внесены изменения в материалы стен, материалы наружной отделки дома, а также будет произведена адаптация проекта под конкретный регион строительства (с учетом грунтов региона, геологических особенностей вашего участка и местных климатических условий) - БЕСПЛАТНО !!! (кроме проектов со скидкой и проектов наших партнеров).

Любой из проектов, размещенных на сайте kingisepp.vipplan.ru мы можем выполнить из требуемых вам строительных материалов: ячеистый бетон (газобетон, пеноблок), керамоблок, кирпич, шлакоблок, бетонный блок, дерево (брус, клееный брус), каркасная технология (деревянный каркас, металлокаркас (ЛСТК)).

Фасад дома и его наружную отделку так же возможно выполнить с применением различных облицовочных материалов: структурной штукатурки, (с утеплителем и без), сайдингом (пластиковый или металлосайдинг), фиброплитами, кирпича.

 
6 Избранные
проекты

Доставка проектов по России: Москва (Московская область), Санкт-Петербург (Ленинградская область), Краснодар, Ростов-на-Дону, Ставрополь, Сочи, Волгоград, Новосибирск, Белгород, Брянск, Воронеж, Саратов, Хабаровск, Астрахань, Нальчик, Владикавказ, Екатеринбург, Тюмень, Самара, Нижний Новгород, Казань, Пермь, Уфа, Челябинск, Красноярск, Ханты-Мансийск, Иркутск, Курган, Оренбург, Омск, Томск, Барнаул, Новокузнецк, Кемерово, Абакан, Чита, Якутск, Южно-Сахалинск, Петропавловск-Камчатский и страны ближнего зарубежья: Белоруссия, Украина, Казахстан