Добро пожаловать на http://vipplan.ru

Випплан Кингисепп - это тысячи проектов домов в нашем каталоге!

Вы всегда сможете найти для себя проект дома вашей мечты! Даже если этого не случилось, мы готовы в любую минуту предложить проект индивидуального дома.

Забыли пароль?
Вы еще не регистрировались?

Перейдите по ссылке ниже на страницу регистрации.

Регистрация...

Внимание!!!

В проектную документацию могут быть внесены изменения любой сложности, в соответствии в Вашими пожеланиями!

Полезные статьи

Технология строительства быстровозводимых домов

Погода бывает разной и показывает свой характер и он не редко оказывается малоприятным. Прекрасная солнечная погода сменяется то жарой, то резким похолоданием, то проливными дождями. Когда наступает зима, вопрос утепления деревянного дома становится все актуальнее и актуальнее. Если вы планируете построить дом в конце осени, то вам нужно знать,что микроклимат который будет создаваться внутри, повлияет на сопротивляемость организма, к простуде и прочим вирусным заболеваниям. Да и в теплом уютном доме приятно проводить время, когда за окном вьюга и стужа....

Мероприятия по получению разрешения на строительство в Кингисеппе

Хотите построить дом в Кингисеппе? Не знаете с чего начать? Для начала, нужно заказать проект, а после получить разрешение на строительство. ...

Проекты домов и коттеджей > Каталог проектов домов > Дом с мансардой, гаражом, террасой и балконам Vg1224

Дом с мансардой, гаражом, террасой и балконам Vg1224

Дом с мансардой, гаражом, террасой и балконам
Зарегистрируйтесь

Проект № Vg1224


Техническое описание
Общая площадь: 161.01 м2
Жилая площадь: 87.2 м2
Высота здания: 8.17 м
Размеры дома: 10.65м×14.36м
Кол-во комнат: 5
Цокольный этаж: нет
Гараж: нет
Мансарда: есть

Kонструкция
Фундамент: Ленточный
Перекрытия: Ж/б плиты
Материал стен: Бетонные блоки

Архитектурный раздел
Конструктивный раздел
АР+КР - 56 000 (Со скидкой 20%)
Срок подготовки проекта – 7 рабочих дней. Проект индивидуального одноэтажного жилого дома с мансардой с размерами здания 10,65 x 14,36 м. Наружная отделка здания – облицовочный кирпич. Фундамент – ленточный монолитный (под несущими стенами). Наружные стены – газобетонные блоки. Внутренние стены - газобетонные блоки. Перегородки — кирпич. Снаружи вентканалы и дымоходы – облицовочный кирпич. Перекрытие межэтажное – ж/б плиты перекрытия. Пол первого этажа - пол по грунту. Крыша двухскатая. Кровля - металлочерепица. Окна - металлопластиковые, выполненные по индивидуальному заказу.
Генплан застройки участка / Паспорт проекта 7000 руб / 10000 руб
Инженерный раздел (полный) 80500 руб
Смета на строительство 40250 руб
Теплотехнический расчет материалов стен Бесплатно
Стоимость проекта со незначительнми изменениями 65950 руб
Стоимость проекта со средними изменениями* 78100 руб
Стоимость проекта со значительными изменениями** 81300 руб

План первого этажа


Прихожая — 2,2 кв м
Холл — 9,6 кв м
С/у — 4,0 кв м
Кухня — 15,2 кв м
Гостиная — 24,1 кв м
Кабинет — 11,0 кв м
Терраса — 12,6 кв м
Котельная — 5,9 кв м
Гараж — 23,5 кв м

Дом с мансардой, гаражом, террасой и балконам

Дом с мансардой, гаражом, террасой и балконам

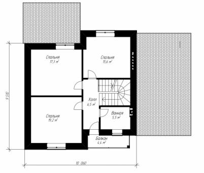
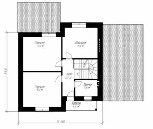
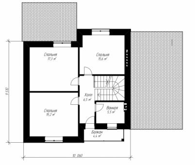
План второго этажа


Холл — 6,5 кв м
Ванная — 5,5 кв м
Спальня — 19,2 кв м
Спальня — 17,3 кв м
Спальня — 15,6 кв м

План мансардного этажа



Дом с мансардой, гаражом, террасой и балконам Дом с мансардой, гаражом, террасой и балконам Дом с мансардой, гаражом, террасой и балконам Дом с мансардой, гаражом, террасой и балконам

Модификации проектов

Внесение изменений и привязка к участку строительства

В любой из проектов от компании VIPplan - Кингисепп по вашему желанию могут быть внесены изменения в материалы стен, материалы наружной отделки дома, а также будет произведена адаптация проекта под конкретный регион строительства (с учетом грунтов региона, геологических особенностей вашего участка и местных климатических условий) - БЕСПЛАТНО !!! (кроме проектов со скидкой и проектов наших партнеров).

Любой из проектов, размещенных на сайте kingisepp.vipplan.ru мы можем выполнить из требуемых вам строительных материалов: ячеистый бетон (газобетон, пеноблок), керамоблок, кирпич, шлакоблок, бетонный блок, дерево (брус, клееный брус), каркасная технология (деревянный каркас, металлокаркас (ЛСТК)).

Фасад дома и его наружную отделку так же возможно выполнить с применением различных облицовочных материалов: структурной штукатурки, (с утеплителем и без), сайдингом (пластиковый или металлосайдинг), фиброплитами, кирпича.

 
6 Избранные
проекты

Доставка проектов по России: Москва (Московская область), Санкт-Петербург (Ленинградская область), Краснодар, Ростов-на-Дону, Ставрополь, Сочи, Волгоград, Новосибирск, Белгород, Брянск, Воронеж, Саратов, Хабаровск, Астрахань, Нальчик, Владикавказ, Екатеринбург, Тюмень, Самара, Нижний Новгород, Казань, Пермь, Уфа, Челябинск, Красноярск, Ханты-Мансийск, Иркутск, Курган, Оренбург, Омск, Томск, Барнаул, Новокузнецк, Кемерово, Абакан, Чита, Якутск, Южно-Сахалинск, Петропавловск-Камчатский и страны ближнего зарубежья: Белоруссия, Украина, Казахстан