Добро пожаловать на http://vipplan.ru

Випплан Кингисепп - это тысячи проектов домов в нашем каталоге!

Вы всегда сможете найти для себя проект дома вашей мечты! Даже если этого не случилось, мы готовы в любую минуту предложить проект индивидуального дома.

Забыли пароль?
Вы еще не регистрировались?

Перейдите по ссылке ниже на страницу регистрации.

Регистрация...

Внимание!!!

В проектную документацию могут быть внесены изменения любой сложности, в соответствии в Вашими пожеланиями!

Полезные статьи

Газобетонные перекрытия

Перекрытия из газобетонных плит, устанавливаются без применения подъемников и кранов. Строители устанавливают прочные и, что немаловажно, легкие газоблоки без помощи техники. Ячеистый бетон (пенобетон и газобетон) нашел широкое применение в домах из пенобетона и газобетона в Кингисеппе...

Типы и разновидности кровли

Кровля состоит из сплошного настила, стяжки и обрешетки, поддерживающих стропила и несколько слоев изоляции, призванных уберечь кровельное пространство от негативного воздействия пара и влаги....

Проекты домов и коттеджей > Каталог проектов домов > Проект одноэтажного уютного коттеджа Vg1300

Проект одноэтажного уютного коттеджа Vg1300

Проект одноэтажного уютного коттеджа
Зарегистрируйтесь

Проект № Vg1300


Техническое описание
Общая площадь: 141 м2
Жилая площадь: 91 м2
Высота здания: 7.92 м
Размеры дома: 8.7м×11м
Кол-во комнат: 5
Цокольный этаж: нет
Гараж: нет
Мансарда: есть

Kонструкция
Фундамент: Щелевой
Перекрытия: Металлические балки
Материал стен: Керамоблок

Архитектурный раздел
Конструктивный раздел
Инженерный раздел
АР+КР - 52 000 (Со скидкой 20%)
АР+КР+ИР - 101 350 (Со скидкой 50%)
Проект индивидуального одноэтажного жилого дома с мансардой с размерами 8,70 x 11,00 м. Наружная отделка здания – облицовочный кирпич Цоколь – клинкерная плитка. Фундамент – стена в грунте (щелевой) Наружные стены запроектированы из: керамического блока Внутренние стены и перегородки: из забутовочного кирпича Перекрытие межэтажное – металлические балки Крыша - двускатная. Материал кровли – металлочерепица. Окна - металлопластиковые, выполненные по индивидуальному заказу.
Генплан застройки участка / Паспорт проекта 7000 руб / 10000 руб
Инженерный раздел (полный) 49350 руб (70500 руб)
Смета на строительство 35250 руб
Теплотехнический расчет материалов стен Бесплатно
Стоимость проекта со незначительнми изменениями 61450 руб
Стоимость проекта со средними изменениями* 72100 руб
Стоимость проекта со значительными изменениями** 74900 руб

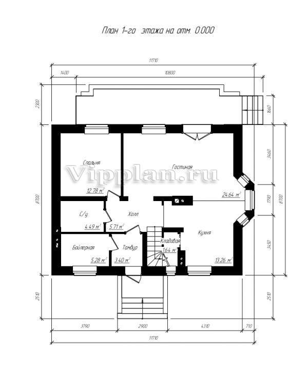
План первого этажа


Тамбур — 3,40 кв м
Холл — 5,71 кв м
Гостиная — 24,64 кв м
Кухня — 13,26 кв м
Кладовая — 1,64 кв м
Спальня — 12,78 кв м
С/у — 4,49 кв м
Бойлерная — 5,28 кв м

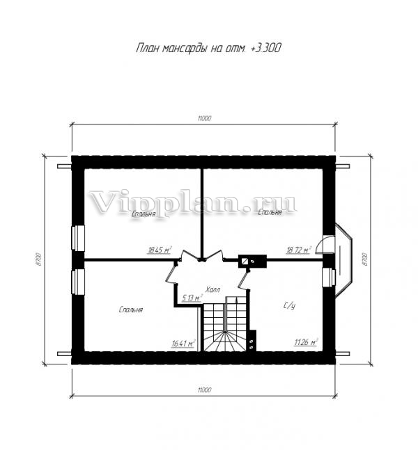
План мансардного этажа


Холл — 5,13 кв м
Спальня — 18,45 кв м
Спальня — 18,72 кв м
С/у — 11,26 кв м
Спальня — 16,41 кв м
Проект одноэтажного уютного коттеджа Проект одноэтажного уютного коттеджа Проект одноэтажного уютного коттеджа Проект одноэтажного уютного коттеджа
Внесение изменений и привязка к участку строительства

В любой из проектов от компании VIPplan - Кингисепп по вашему желанию могут быть внесены изменения в материалы стен, материалы наружной отделки дома, а также будет произведена адаптация проекта под конкретный регион строительства (с учетом грунтов региона, геологических особенностей вашего участка и местных климатических условий) - БЕСПЛАТНО !!! (кроме проектов со скидкой и проектов наших партнеров).

Любой из проектов, размещенных на сайте kingisepp.vipplan.ru мы можем выполнить из требуемых вам строительных материалов: ячеистый бетон (газобетон, пеноблок), керамоблок, кирпич, шлакоблок, бетонный блок, дерево (брус, клееный брус), каркасная технология (деревянный каркас, металлокаркас (ЛСТК)).

Фасад дома и его наружную отделку так же возможно выполнить с применением различных облицовочных материалов: структурной штукатурки, (с утеплителем и без), сайдингом (пластиковый или металлосайдинг), фиброплитами, кирпича.

 
6 Избранные
проекты

Доставка проектов по России: Москва (Московская область), Санкт-Петербург (Ленинградская область), Краснодар, Ростов-на-Дону, Ставрополь, Сочи, Волгоград, Новосибирск, Белгород, Брянск, Воронеж, Саратов, Хабаровск, Астрахань, Нальчик, Владикавказ, Екатеринбург, Тюмень, Самара, Нижний Новгород, Казань, Пермь, Уфа, Челябинск, Красноярск, Ханты-Мансийск, Иркутск, Курган, Оренбург, Омск, Томск, Барнаул, Новокузнецк, Кемерово, Абакан, Чита, Якутск, Южно-Сахалинск, Петропавловск-Камчатский и страны ближнего зарубежья: Белоруссия, Украина, Казахстан