Добро пожаловать на http://vipplan.ru

Випплан Кингисепп - это тысячи проектов домов в нашем каталоге!

Вы всегда сможете найти для себя проект дома вашей мечты! Даже если этого не случилось, мы готовы в любую минуту предложить проект индивидуального дома.

Забыли пароль?
Вы еще не регистрировались?

Перейдите по ссылке ниже на страницу регистрации.

Регистрация...

Внимание!!!

В проектную документацию могут быть внесены изменения любой сложности, в соответствии в Вашими пожеланиями!

Полезные статьи

Вентиляция в подвале дома

Без подвала или цокольного этажа в частном доме, в наше время, не обойтись. Это полезное для дома помещение должно быть хорошо вентилируемым. В доме с подвалом должна быть хорошая циркуляция воздуха, для сохранения находящихся в нем продуктов. Отсутствие вентиляции  может привести к образованию плесени и сырости не только в подвале, но и во всем доме....

Правильная изоляция подвала

Какой выбрать материал, как правильно выполнить работу, перед началом изоляции подвала какие подготовительно-строительные работы следует провести и какой момент играет правильное выполнение работ. Последние несколько лет придали много хлопот жильцам домов, увлажнив им подвалы. Этот период показал насколько важно обеспечить надлежащую защиту зданий от грунтовых вод и воздействия влаги....

Проекты домов и коттеджей > Каталог проектов домов > Одноэтажный дом с мансардой, террасой, гаражом и балконом Vg1410

Одноэтажный дом с мансардой, террасой, гаражом и балконом Vg1410

Одноэтажный дом с мансардой, террасой, гаражом и балконом
Зарегистрируйтесь

Проект № Vg1410


Техническое описание
Общая площадь: 216.31 м2
Жилая площадь: 118.89 м2
Высота здания: 9.89 м
Размеры дома: 10.08м×15.83м
Кол-во комнат: 6
Цокольный этаж: нет
Гараж: нет
Мансарда: нет

Kонструкция
Фундамент: монолитная плита
Перекрытия: монолитные
Материал стен: material_mon

Архитектурный раздел
Конструктивный раздел
АР+КР - 64 000 (Со скидкой 20%)
Одноэтажный дом с мансардой, террасой, гаражом и балконом с размерами здания 10,08 х 15,83 м. Фундамент - монолитная ж/б плита под всей площадью дома (мелкозаглубленная). Наружные стены здания -рядовой пустотелый кирпич с утеплением минеральной ватой и отделкой штукатуркой. Пол 1 этажа - пол по монолитной плите фундамента. Межэтажное перекрытие - монолитная ж/б плита. Крыша - многоскатная. Кровля - битумная черепица. Окна — металлопластиковые.
Генплан застройки участка / Паспорт проекта 7000 руб / 10000 руб
Инженерный раздел (полный) 108000 руб
Смета на строительство 54000 руб
Теплотехнический расчет материалов стен Бесплатно
Стоимость проекта со незначительнми изменениями 74600 руб
Стоимость проекта со средними изменениями* 90800 руб
Стоимость проекта со значительными изменениями** 95100 руб

План первого этажа


Тамбур - 4,56 м2
Холл 1 - 5,57 м2
Гостиная - 26,86 м2
Кухня - 11,85 м2
Бойлерная - 5,00 м2
С/у - 4,06 м2
Холл 2 - 3,20 м2
Гараж - 31,90 м2
Спальня - 14,92 м2

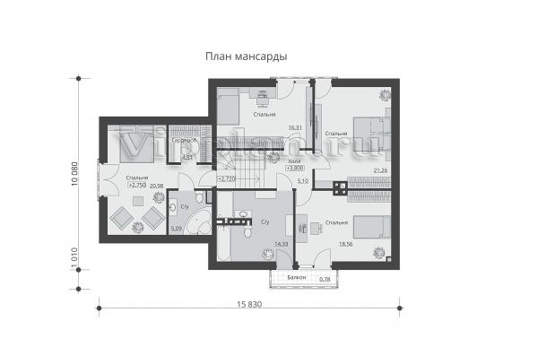
План мансардного этажа


Холл - 5,10 м2
Спальня - 21,26 м2
Спальня - 16,31 м2
Гардероб - 4,51 м2
С/у - 5,09 м2
С/у - 14,33 м2
Балкон - 0,78 м2
Спальня - 18,56 м2
Одноэтажный дом с мансардой, террасой, гаражом и балконом Одноэтажный дом с мансардой, террасой, гаражом и балконом Одноэтажный дом с мансардой, террасой, гаражом и балконом Одноэтажный дом с мансардой, террасой, гаражом и балконом

Модификации проектов

Внесение изменений и привязка к участку строительства

В любой из проектов от компании VIPplan - Кингисепп по вашему желанию могут быть внесены изменения в материалы стен, материалы наружной отделки дома, а также будет произведена адаптация проекта под конкретный регион строительства (с учетом грунтов региона, геологических особенностей вашего участка и местных климатических условий) - БЕСПЛАТНО !!! (кроме проектов со скидкой и проектов наших партнеров).

Любой из проектов, размещенных на сайте kingisepp.vipplan.ru мы можем выполнить из требуемых вам строительных материалов: ячеистый бетон (газобетон, пеноблок), керамоблок, кирпич, шлакоблок, бетонный блок, дерево (брус, клееный брус), каркасная технология (деревянный каркас, металлокаркас (ЛСТК)).

Фасад дома и его наружную отделку так же возможно выполнить с применением различных облицовочных материалов: структурной штукатурки, (с утеплителем и без), сайдингом (пластиковый или металлосайдинг), фиброплитами, кирпича.

 
6 Избранные
проекты

Доставка проектов по России: Москва (Московская область), Санкт-Петербург (Ленинградская область), Краснодар, Ростов-на-Дону, Ставрополь, Сочи, Волгоград, Новосибирск, Белгород, Брянск, Воронеж, Саратов, Хабаровск, Астрахань, Нальчик, Владикавказ, Екатеринбург, Тюмень, Самара, Нижний Новгород, Казань, Пермь, Уфа, Челябинск, Красноярск, Ханты-Мансийск, Иркутск, Курган, Оренбург, Омск, Томск, Барнаул, Новокузнецк, Кемерово, Абакан, Чита, Якутск, Южно-Сахалинск, Петропавловск-Камчатский и страны ближнего зарубежья: Белоруссия, Украина, Казахстан