Добро пожаловать на http://vipplan.ru

Випплан Кингисепп - это тысячи проектов домов в нашем каталоге!

Вы всегда сможете найти для себя проект дома вашей мечты! Даже если этого не случилось, мы готовы в любую минуту предложить проект индивидуального дома.

Забыли пароль?
Вы еще не регистрировались?

Перейдите по ссылке ниже на страницу регистрации.

Регистрация...

Внимание!!!

В проектную документацию могут быть внесены изменения любой сложности, в соответствии в Вашими пожеланиями!

Полезные статьи

Выбор проекта дома (площадь, этажность - 1 или 2 этажа)

Для того что бы выбрать проект дома, предварительно необходимо определиться, какой будет площадь будущего дома (решение зависит от количества человек, планирующих постоянно в нем проживать), количество спален, санузлов и ванных комнат, компоновка дома, одноэтажный, масардный или двухэтажный дом (зависит от площади участка и предпочтений будущих хозяев) ...

Печи и камины в частном доме

Спросите любого человека, и вы поймете, что каждый человек мечтает иметь свой собственный дом, который он сможет обустроить так, как ему хочется. Этот дом будет полон уюта, тепла, света и комфорта, а главное, что, придя с работы, человек сможет запросто отдохнуть у своего очага.  Нет никакой альтернативы перед выбором печи или камина. Эти две вещи не сможет  заменить ни искусственный свет, ни солнечное освещение. Камин и печь, с древности, считаются предметом роскоши. Ни один большой дом не может обойтись без них, поскольку если удастся сесть и посидеть перед этим местом, то долго нельзя будет...

Проекты домов и коттеджей > Каталог проектов домов > Проект двухэтажного дома с гаражом Vg145

Проект двухэтажного дома с гаражом Vg145

Проект двухэтажного дома с гаражом
Зарегистрируйтесь

Проект № Vg145


Техническое описание
Общая площадь: 203.7 м2
Площадь гаража 46.59 м2
Высота здания: 9.16 м
Размеры дома: 16м×17м
Кол-во комнат: 5
Цокольный этаж: нет
Гараж: есть
Мансарда: нет

Kонструкция

Архитектурный раздел
Конструктивный раздел
АР+КР - 64 000 (Со скидкой 20%)
Описание
Проект индивидуального двухэтажного одноквартирного жилого дома с размерами 16,70x15,60 м.
Наружная отделка здания -облицовочный кирпич, деревянные панели. Частично по фасаду отделка камнем.
Обрамление оконных и дверных проемов -камень.
Цоколь- камень.
Фундамент - ленточный, монолитный ж/б .
Наружные стены запроектированы из: газобетонных блоков, пеноплекса и облицовочного кирпича.
Внутренние стены и перегородки -из газобетонных блоков.
Перемычки - монолитные и сварные из профиля проката.
Перекрытия 1 этажа - сборные ж/б плиты, 2 этажа- по деревянным балкам.
Пол первого этажа - пол по грунту.
Крыша -многоскатная. Материал кровли - металлочерепица.
Окна - металлопластиковые, выполненные по индивидуальному заказу.
Лестница выполняется по индивидуальному заказу.
Технико-экономические показатели
Наименование
Ед. изм.
Площадь
Примечание
1
Общая площадь помещений
м2
203,7
 
2
Этажность
 
2
 
3
Высота здания
м
9,16
От отметки ур.земли до конька

 

Генплан застройки участка / Паспорт проекта 7000 руб / 10000 руб
Инженерный раздел (полный) 102000 руб
Смета на строительство 51000 руб
Теплотехнический расчет материалов стен Бесплатно
Стоимость проекта со незначительнми изменениями 74900 руб
Стоимость проекта со средними изменениями* 90200 руб
Стоимость проекта со значительными изменениями** 94300 руб

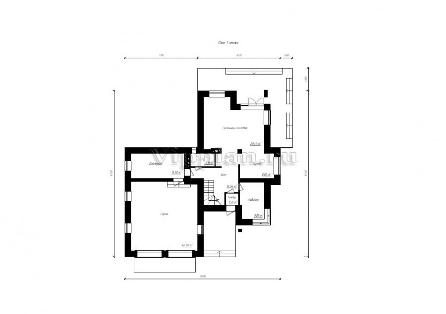
План первого этажа


1) Гостиная столовая - 29.4 м2
2) Кухня - 8.86 м2
3) Бойлерная - 13.18 м2
4) Санузел - 3.18 м2
5) Холл - 16.04 м2
6) Тамбур - 1.56 м2
7) Кабинет - 9.05 м2
8) Гараж - 46.59 м2

Проект двухэтажного дома с гаражом

Проект двухэтажного дома с гаражом

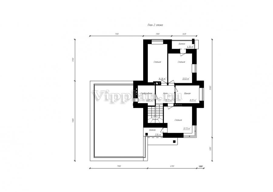
План второго этажа


1) Спальня - 14.36 м2
2) Спальня - 13.53 м2
3) Спальня - 13.73 м2
4) Ванная - 8.25 м2
5) Холл - 11.73 м2
6) Гардеробная - 6.27 м2
7) Балкон - 3.54 м2
Проект двухэтажного дома с гаражом Проект двухэтажного дома с гаражом Проект двухэтажного дома с гаражом Проект двухэтажного дома с гаражом
Внесение изменений и привязка к участку строительства

В любой из проектов от компании VIPplan - Кингисепп по вашему желанию могут быть внесены изменения в материалы стен, материалы наружной отделки дома, а также будет произведена адаптация проекта под конкретный регион строительства (с учетом грунтов региона, геологических особенностей вашего участка и местных климатических условий) - БЕСПЛАТНО !!! (кроме проектов со скидкой и проектов наших партнеров).

Любой из проектов, размещенных на сайте kingisepp.vipplan.ru мы можем выполнить из требуемых вам строительных материалов: ячеистый бетон (газобетон, пеноблок), керамоблок, кирпич, шлакоблок, бетонный блок, дерево (брус, клееный брус), каркасная технология (деревянный каркас, металлокаркас (ЛСТК)).

Фасад дома и его наружную отделку так же возможно выполнить с применением различных облицовочных материалов: структурной штукатурки, (с утеплителем и без), сайдингом (пластиковый или металлосайдинг), фиброплитами, кирпича.

 
6 Избранные
проекты

Доставка проектов по России: Москва (Московская область), Санкт-Петербург (Ленинградская область), Краснодар, Ростов-на-Дону, Ставрополь, Сочи, Волгоград, Новосибирск, Белгород, Брянск, Воронеж, Саратов, Хабаровск, Астрахань, Нальчик, Владикавказ, Екатеринбург, Тюмень, Самара, Нижний Новгород, Казань, Пермь, Уфа, Челябинск, Красноярск, Ханты-Мансийск, Иркутск, Курган, Оренбург, Омск, Томск, Барнаул, Новокузнецк, Кемерово, Абакан, Чита, Якутск, Южно-Сахалинск, Петропавловск-Камчатский и страны ближнего зарубежья: Белоруссия, Украина, Казахстан