Добро пожаловать на http://vipplan.ru

Випплан Кингисепп - это тысячи проектов домов в нашем каталоге!

Вы всегда сможете найти для себя проект дома вашей мечты! Даже если этого не случилось, мы готовы в любую минуту предложить проект индивидуального дома.

Забыли пароль?
Вы еще не регистрировались?

Перейдите по ссылке ниже на страницу регистрации.

Регистрация...

Внимание!!!

В проектную документацию могут быть внесены изменения любой сложности, в соответствии в Вашими пожеланиями!

Полезные статьи

Выбор проекта дома в Кингисеппе

Выбор проекта дома может завести семью в тупик. Прийти к одному конкретному мнению всем членам семьи очень сложно. Кому-то по душе, чтобы дом был большой и одноэтажный, с красивой террасой или верандой, кому-то хочется жить в двухэтажном доме с балконом. Детям, в основном, нравятся дома с мансардой....

Газобетонные перекрытия

Перекрытия из газобетонных плит, устанавливаются без применения подъемников и кранов. Строители устанавливают прочные и, что немаловажно, легкие газоблоки без помощи техники. Ячеистый бетон (пенобетон и газобетон) нашел широкое применение в домах из пенобетона и газобетона в Кингисеппе...

Проекты домов и коттеджей > Каталог проектов домов > Одноэтажный дом с просторной террасой и гаражом на 2 машины Vg2291

Одноэтажный дом с просторной террасой и гаражом на 2 машины Vg2291

Одноэтажный дом с просторной террасой и гаражом на 2 машины
Зарегистрируйтесь

Проект № Vg2291


Техническое описание
Общая площадь: 210.5 м2
Жилая площадь: 84.33 м2
Высота здания: 6.87 м
Размеры дома: 18.68м×16.22м
Кол-во комнат: 4
Цокольный этаж: нет
Гараж: нет
Мансарда: нет

Kонструкция
Фундамент: ленточный
Перекрытия: балки
Материал стен: Газобетон

Архитектурный раздел
Конструктивный раздел
АР+КР - 64 000 (Со скидкой 20%)
Одноэтажный жилой дом с размерами здания 18,68 х 16,22 м. Фундамент - монолитная ж/б стена в грунте (щелевой). Наружные стены - газобетонный блок с утеплением мин. ватой и отделкой штукатуркой и камнем по навесному фасаду. Внутренние несущие стены - газобетонный блок. Перегородки - каркасные с ГКЛ. Пол этажа - пол по грунту. Чердачное перекрытие - деревянные балки. Крыша многоскатная. Кровля — фальцевые панели. Окна - металлопластиковые.
Генплан застройки участка / Паспорт проекта 7000 руб / 10000 руб
Инженерный раздел (полный) 105500 руб
Смета на строительство 52750 руб
Теплотехнический расчет материалов стен Бесплатно
Стоимость проекта со незначительнми изменениями 74700 руб
Стоимость проекта со средними изменениями* 90600 руб
Стоимость проекта со значительными изменениями** 94800 руб

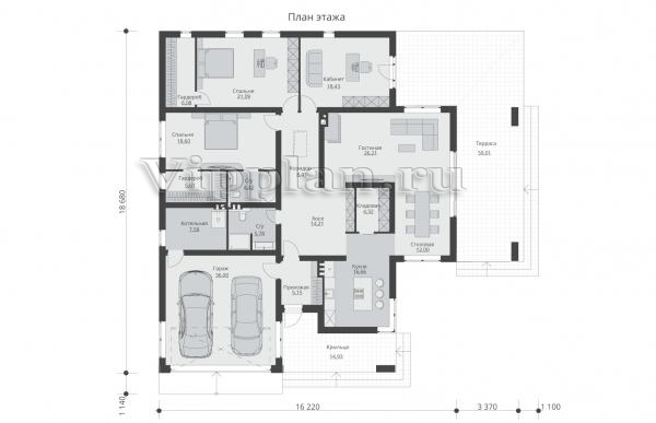
План первого этажа


Прихожая - 5,15 м2
Гараж - 36,00 м2
Котельная - 7,58 м2
С/у - 5,78 м2
Гардероб - 5,61 м2
С/у - 4,42 м2
Спальня - 18,60 м2
Гардероб - 6,08 м2
Спальня - 21,09 м2
Кабинет - 18,43 м2
Коридор - 8,41 м2
Гостиная - 26,21 м2
Столовая - 12,00 м2
Кладовая - 4,32 м2
Холл - 14,21 м2
Кухня - 16,66 м2
Одноэтажный дом с просторной террасой и гаражом на 2 машины Одноэтажный дом с просторной террасой и гаражом на 2 машины Одноэтажный дом с просторной террасой и гаражом на 2 машины Одноэтажный дом с просторной террасой и гаражом на 2 машины

Модификации проектов

Внесение изменений и привязка к участку строительства

В любой из проектов от компании VIPplan - Кингисепп по вашему желанию могут быть внесены изменения в материалы стен, материалы наружной отделки дома, а также будет произведена адаптация проекта под конкретный регион строительства (с учетом грунтов региона, геологических особенностей вашего участка и местных климатических условий) - БЕСПЛАТНО !!! (кроме проектов со скидкой и проектов наших партнеров).

Любой из проектов, размещенных на сайте kingisepp.vipplan.ru мы можем выполнить из требуемых вам строительных материалов: ячеистый бетон (газобетон, пеноблок), керамоблок, кирпич, шлакоблок, бетонный блок, дерево (брус, клееный брус), каркасная технология (деревянный каркас, металлокаркас (ЛСТК)).

Фасад дома и его наружную отделку так же возможно выполнить с применением различных облицовочных материалов: структурной штукатурки, (с утеплителем и без), сайдингом (пластиковый или металлосайдинг), фиброплитами, кирпича.

 
6 Избранные
проекты

Доставка проектов по России: Москва (Московская область), Санкт-Петербург (Ленинградская область), Краснодар, Ростов-на-Дону, Ставрополь, Сочи, Волгоград, Новосибирск, Белгород, Брянск, Воронеж, Саратов, Хабаровск, Астрахань, Нальчик, Владикавказ, Екатеринбург, Тюмень, Самара, Нижний Новгород, Казань, Пермь, Уфа, Челябинск, Красноярск, Ханты-Мансийск, Иркутск, Курган, Оренбург, Омск, Томск, Барнаул, Новокузнецк, Кемерово, Абакан, Чита, Якутск, Южно-Сахалинск, Петропавловск-Камчатский и страны ближнего зарубежья: Белоруссия, Украина, Казахстан