Добро пожаловать на http://vipplan.ru

Випплан Кингисепп - это тысячи проектов домов в нашем каталоге!

Вы всегда сможете найти для себя проект дома вашей мечты! Даже если этого не случилось, мы готовы в любую минуту предложить проект индивидуального дома.

Забыли пароль?
Вы еще не регистрировались?

Перейдите по ссылке ниже на страницу регистрации.

Регистрация...

Внимание!!!

В проектную документацию могут быть внесены изменения любой сложности, в соответствии в Вашими пожеланиями!

Полезные статьи

Правильная изоляция подвала

Какой выбрать материал, как правильно выполнить работу, перед началом изоляции подвала какие подготовительно-строительные работы следует провести и какой момент играет правильное выполнение работ. Последние несколько лет придали много хлопот жильцам домов, увлажнив им подвалы. Этот период показал насколько важно обеспечить надлежащую защиту зданий от грунтовых вод и воздействия влаги....

Свайно-ростверковый, буронабивной фундамент

Для объединения свай в общий фундамент устанавливают бетонные ростверки (железобетонные плиты). Устройство ростверка зависит от расположения, вида свай и конструкции здания. Ростверки могут быть монолитными, сборными или сборно-монолитными, также возможны безростверковые решения. ...

Проекты домов и коттеджей > Каталог проектов домов > Двухэтажный дом с чердаком и гаражом на две машины Vg2355

Двухэтажный дом с чердаком и гаражом на две машины Vg2355

Двухэтажный дом с чердаком и гаражом на две машины
Зарегистрируйтесь

Проект № Vg2355


Техническое описание
Общая площадь: 397.53 м2
Жилая площадь: 165.55 м2
Высота здания: 10.65 м
Размеры дома: 25.1м×18.9м
Кол-во комнат: 6
Цокольный этаж: нет
Гараж: есть
Мансарда: нет

Kонструкция
Фундамент: Свайно-ростверковый
Перекрытия: Монолитное ж/б
Материал стен: Бетонные блоки

Архитектурный раздел
Конструктивный раздел
Инженерный раздел
АР+КР - 92 000 (Со скидкой 20%)
АР+КР+ИР - 231 300 (Со скидкой 50%)
Модель проекта индивидуального двухэтажного жилого дома счердаком с размерами здания 25,10 x 18,90 м. Наружная отделка здания - облицовочный кирпич. Фундамент - свайно-ростверковый (забивные висячие сваи). Наружные стены - керамзитобетонный блок с утеплителем, воздушным зазором и отделкой облицовочным кирпичом. Внутренние стены - керамзитобетонный блок Перегородки - забутовочный кирпич. Пол первого этажа - пол по грунту. Межэтажные перекрытия - монолитные ж/б. Чердачное перекрытие - деревянные балки перекрытия. Крыша многоскатная. Кровля - металлочерепица. Окна - металлопластиковые. Лестница - монолитная ж/б.
Генплан застройки участка / Паспорт проекта 7000 руб / 10000 руб
Инженерный раздел (полный) 139300 руб (199000 руб)
Смета на строительство 99500 руб
Теплотехнический расчет материалов стен Бесплатно
Стоимость проекта со незначительнми изменениями 105050 руб
Стоимость проекта со средними изменениями* 134900 руб
Стоимость проекта со значительными изменениями** 142900 руб

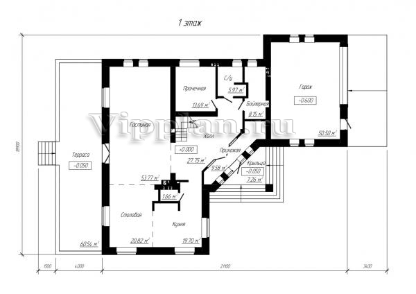
План первого этажа


Прихожая - 9,58 кв м
Холл - 27,75 кв м
Гараж - 50,50 кв м
Бойлерная - 8,15 кв м
С/у - 5,97 кв м
Прачечная - 13,69 кв м
Гостиная - 53,77 кв м
Столовая - 20,82 кв м
Кухня - 19,70 кв м
Кладовая - 1,66 кв м

Двухэтажный дом с чердаком и гаражом на две машины

Двухэтажный дом с чердаком и гаражом на две машины

План второго этажа


Холл - 18,07 кв м
Зона отдыха - 35,35 кв м
Спальня - 13,26 кв м
С/у - 8,55 кв м
Спальня - 20,20 кв м
Гардероб - 7,33 кв м
Спальня - 22,86 кв м
С/у - 7,18 кв м
С/у - 8,02 кв м
Спальня - 20,11 кв м
Чердак - 25,04 кв м
Двухэтажный дом с чердаком и гаражом на две машины Двухэтажный дом с чердаком и гаражом на две машины Двухэтажный дом с чердаком и гаражом на две машины Двухэтажный дом с чердаком и гаражом на две машины
Внесение изменений и привязка к участку строительства

В любой из проектов от компании VIPplan - Кингисепп по вашему желанию могут быть внесены изменения в материалы стен, материалы наружной отделки дома, а также будет произведена адаптация проекта под конкретный регион строительства (с учетом грунтов региона, геологических особенностей вашего участка и местных климатических условий) - БЕСПЛАТНО !!! (кроме проектов со скидкой и проектов наших партнеров).

Любой из проектов, размещенных на сайте kingisepp.vipplan.ru мы можем выполнить из требуемых вам строительных материалов: ячеистый бетон (газобетон, пеноблок), керамоблок, кирпич, шлакоблок, бетонный блок, дерево (брус, клееный брус), каркасная технология (деревянный каркас, металлокаркас (ЛСТК)).

Фасад дома и его наружную отделку так же возможно выполнить с применением различных облицовочных материалов: структурной штукатурки, (с утеплителем и без), сайдингом (пластиковый или металлосайдинг), фиброплитами, кирпича.

 
6 Избранные
проекты

Доставка проектов по России: Москва (Московская область), Санкт-Петербург (Ленинградская область), Краснодар, Ростов-на-Дону, Ставрополь, Сочи, Волгоград, Новосибирск, Белгород, Брянск, Воронеж, Саратов, Хабаровск, Астрахань, Нальчик, Владикавказ, Екатеринбург, Тюмень, Самара, Нижний Новгород, Казань, Пермь, Уфа, Челябинск, Красноярск, Ханты-Мансийск, Иркутск, Курган, Оренбург, Омск, Томск, Барнаул, Новокузнецк, Кемерово, Абакан, Чита, Якутск, Южно-Сахалинск, Петропавловск-Камчатский и страны ближнего зарубежья: Белоруссия, Украина, Казахстан