Добро пожаловать на http://vipplan.ru

Випплан Кингисепп - это тысячи проектов домов в нашем каталоге!

Вы всегда сможете найти для себя проект дома вашей мечты! Даже если этого не случилось, мы готовы в любую минуту предложить проект индивидуального дома.

Забыли пароль?
Вы еще не регистрировались?

Перейдите по ссылке ниже на страницу регистрации.

Регистрация...

Внимание!!!

В проектную документацию могут быть внесены изменения любой сложности, в соответствии в Вашими пожеланиями!

Полезные статьи

Системы утепления фасада

Основные тепловые потери происходят через стены, фундамент и крышу. Уменьшить их можно с помощью утеплителя, создав внутри дома оптимальный для жизни климат, с достаточно ровным температурным режимом и низкой влажностью....

Мероприятия по получению разрешения на строительство в Кингисеппе

Хотите построить дом в Кингисеппе? Не знаете с чего начать? Для начала, нужно заказать проект, а после получить разрешение на строительство. ...

Проекты домов и коттеджей > Каталог проектов домов > Проект индивидуального жилого дома с мансардой в финском стиле Vg2373

Проект индивидуального жилого дома с мансардой в финском стиле Vg2373

Проект индивидуального жилого дома с мансардой в финском стиле
Зарегистрируйтесь

Проект № Vg2373


Техническое описание
Общая площадь: 222 м2
Жилая площадь: 126.37 м2
Высота здания: 9 м
Размеры дома: 11.12м×16.72м
Кол-во комнат: 6
Цокольный этаж: нет
Гараж: нет
Мансарда: есть

Kонструкция
Фундамент: Монолитная ж/б плита
Перекрытия: Монолитное ж/б
Материал стен: Кирпич

Архитектурный раздел
АР+КР - 64 000 (Со скидкой 20%)
Модель проекта индивидуального одноэтажного жилого дома с мансардой с размерами здания 11,12 x 16,72 м. Наружная отделка здания - сайдинг. Фундамент - монолитная ж/б плита. Наружные стены - забутовочный кирпич с утеплителем, воздушным зазором и отделкой сайдингом. Внутренние стены - забутовочный кирпич. Перегородки - забутовочный кирпич. Пол первого этажа - пол по фундаментной плите. Межэтажное перекрытие - монолитное ж/б. Крыша многоскатная. Кровля - металлочерепица. Окна - металлопластиковые. Лестница - металлическая.
Генплан застройки участка / Паспорт проекта 7000 руб / 10000 руб
Инженерный раздел (полный) 111000 руб
Смета на строительство 55500 руб
Теплотехнический расчет материалов стен Бесплатно
Стоимость проекта со незначительнми изменениями 74450 руб
Стоимость проекта со средними изменениями* 91100 руб
Стоимость проекта со значительными изменениями** 95500 руб

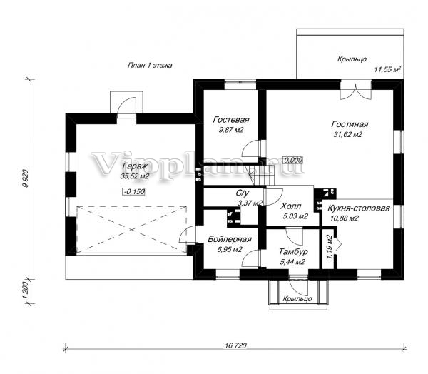
План первого этажа


Тамбур - 5,44 кв м
Холл - 5,03 кв м
Кухня-столовая - 10,88 кв м
Гостиная - 31,62 кв м
Гостевая - 9,87 кв м
С/у - 3,37 кв м
Бойлерная - 6,95 кв м
Гараж - 35,52 кв м

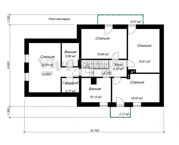
План мансардного этажа


Холл- 6,32 кв м
Спальня - 25,64 кв м
Спальня - 20,16 кв м
Спальня - 19,81 кв м
Спальня - 19,27 кв м
Ванная - 10,13 кв м
С/у - 5,88 кв м
Гардероб - 3,77 кв м
Балкон 1 - 3,75 кв м
Балкон 2 - 3,78 кв м
Проект индивидуального жилого дома с мансардой в финском стиле Проект индивидуального жилого дома с мансардой в финском стиле Проект индивидуального жилого дома с мансардой в финском стиле Проект индивидуального жилого дома с мансардой в финском стиле

Модификации проектов

Внесение изменений и привязка к участку строительства

В любой из проектов от компании VIPplan - Кингисепп по вашему желанию могут быть внесены изменения в материалы стен, материалы наружной отделки дома, а также будет произведена адаптация проекта под конкретный регион строительства (с учетом грунтов региона, геологических особенностей вашего участка и местных климатических условий) - БЕСПЛАТНО !!! (кроме проектов со скидкой и проектов наших партнеров).

Любой из проектов, размещенных на сайте kingisepp.vipplan.ru мы можем выполнить из требуемых вам строительных материалов: ячеистый бетон (газобетон, пеноблок), керамоблок, кирпич, шлакоблок, бетонный блок, дерево (брус, клееный брус), каркасная технология (деревянный каркас, металлокаркас (ЛСТК)).

Фасад дома и его наружную отделку так же возможно выполнить с применением различных облицовочных материалов: структурной штукатурки, (с утеплителем и без), сайдингом (пластиковый или металлосайдинг), фиброплитами, кирпича.

 
6 Избранные
проекты

Доставка проектов по России: Москва (Московская область), Санкт-Петербург (Ленинградская область), Краснодар, Ростов-на-Дону, Ставрополь, Сочи, Волгоград, Новосибирск, Белгород, Брянск, Воронеж, Саратов, Хабаровск, Астрахань, Нальчик, Владикавказ, Екатеринбург, Тюмень, Самара, Нижний Новгород, Казань, Пермь, Уфа, Челябинск, Красноярск, Ханты-Мансийск, Иркутск, Курган, Оренбург, Омск, Томск, Барнаул, Новокузнецк, Кемерово, Абакан, Чита, Якутск, Южно-Сахалинск, Петропавловск-Камчатский и страны ближнего зарубежья: Белоруссия, Украина, Казахстан