Добро пожаловать на http://vipplan.ru

Випплан Кингисепп - это тысячи проектов домов в нашем каталоге!

Вы всегда сможете найти для себя проект дома вашей мечты! Даже если этого не случилось, мы готовы в любую минуту предложить проект индивидуального дома.

Забыли пароль?
Вы еще не регистрировались?

Перейдите по ссылке ниже на страницу регистрации.

Регистрация...

Внимание!!!

В проектную документацию могут быть внесены изменения любой сложности, в соответствии в Вашими пожеланиями!

Полезные статьи

Утепление стен дома изнутри

Утепление стен дома изнутри – это не правильный метод теплоизоляции помещения и используется в самом крайнем случае, когда других вариантов уже не остается. Как правило, утепление стен изнутри выполняется по незнанию или вынужденно, поскольку, теплоизоляция внутренних помещений дома другим способом невозможна. Вопросы теплоизоляции необходимо решать на стадии проектирования дома или коттеджа, а не тогда когда дом уже построен и приходится исправлять совершенные ошибки по факту....

Инженерный раздел архитектурно-строительного проекта

Понятие «комфортный, теплый и уютный дом» включает в себя грамотно рассчитанные и проведенные инженерные сети. Наша компания, имея большой опыт, возьмет на себя весь комплекс мероприятий по проектированию вашего дома, связанные с планировкой, выбором материалов и устройством инженерных систем (инженерный раздел проекта дома: электрика, отопление, водоснабжение и канализация)...

Проекты домов и коттеджей > Каталог проектов домов > Одноэтажный дом с подвалом и террасами Vg2654

Одноэтажный дом с подвалом и террасами Vg2654

Одноэтажный дом с подвалом и террасами
Зарегистрируйтесь

Проект № Vg2654


Техническое описание
Общая площадь: 140.81 м2
Жилая площадь: 67.56 м2
Размеры дома: 13.12м×13.72м
Кол-во комнат: 4
Цокольный этаж: есть
Гараж: нет
Мансарда: нет

Kонструкция
Фундамент: ленточный
Перекрытия: монолитная плита, балки

Архитектурный раздел
Конструктивный раздел
АР+КР - 52 000 (Со скидкой 20%)
Одноэтажный дом с подвалом и террасами с размерами здания 13,12 x 13,72 м. Фундамент - ленточный монолитный ж/б. Наружные стены - керамзитобетонный блок, минераловатные плиты, фасадная штукатурка. Внутренние стены - керамзитобетонный блок. Перегородки - керамзитобетонный блок. Пол подвала - пол по грунту. Пол 1 этажа - пол по монолитному ж/б перекрытию. Чердачное перекрытие - деревянные балки перекрытия. Крыша - двускатная. Кровля - профлист. Окна - металлопластиковые.
Генплан застройки участка / Паспорт проекта 7000 руб / 10000 руб
Инженерный раздел (полный) 70500 руб
Смета на строительство 35250 руб
Теплотехнический расчет материалов стен Бесплатно
Стоимость проекта со незначительнми изменениями 61450 руб
Стоимость проекта со средними изменениями* 72100 руб
Стоимость проекта со значительными изменениями** 74900 руб

План цокольного этажа


Бойлерная - 20,71 м2
Кладовая - 22,27 м2

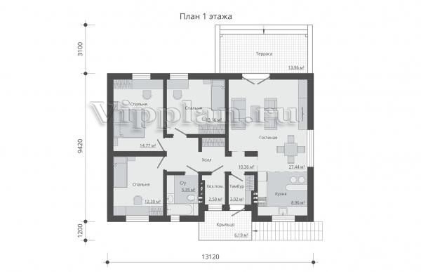
План первого этажа


Тамбур - 3,02 м2
Холл - 10,36 м2
Подсобка - 2,59 м2
Кухня - 8,96 м2
Гостиная - 27,44 м2
С/у - 5,35 м2
Спальня - 12,20 м2
Спальня - 14,77 м2
Спальня - 13,16 м2
Одноэтажный дом с подвалом и террасами Одноэтажный дом с подвалом и террасами Одноэтажный дом с подвалом и террасами Одноэтажный дом с подвалом и террасами

Модификации проектов

Внесение изменений и привязка к участку строительства

В любой из проектов от компании VIPplan - Кингисепп по вашему желанию могут быть внесены изменения в материалы стен, материалы наружной отделки дома, а также будет произведена адаптация проекта под конкретный регион строительства (с учетом грунтов региона, геологических особенностей вашего участка и местных климатических условий) - БЕСПЛАТНО !!! (кроме проектов со скидкой и проектов наших партнеров).

Любой из проектов, размещенных на сайте kingisepp.vipplan.ru мы можем выполнить из требуемых вам строительных материалов: ячеистый бетон (газобетон, пеноблок), керамоблок, кирпич, шлакоблок, бетонный блок, дерево (брус, клееный брус), каркасная технология (деревянный каркас, металлокаркас (ЛСТК)).

Фасад дома и его наружную отделку так же возможно выполнить с применением различных облицовочных материалов: структурной штукатурки, (с утеплителем и без), сайдингом (пластиковый или металлосайдинг), фиброплитами, кирпича.

 
6 Избранные
проекты

Доставка проектов по России: Москва (Московская область), Санкт-Петербург (Ленинградская область), Краснодар, Ростов-на-Дону, Ставрополь, Сочи, Волгоград, Новосибирск, Белгород, Брянск, Воронеж, Саратов, Хабаровск, Астрахань, Нальчик, Владикавказ, Екатеринбург, Тюмень, Самара, Нижний Новгород, Казань, Пермь, Уфа, Челябинск, Красноярск, Ханты-Мансийск, Иркутск, Курган, Оренбург, Омск, Томск, Барнаул, Новокузнецк, Кемерово, Абакан, Чита, Якутск, Южно-Сахалинск, Петропавловск-Камчатский и страны ближнего зарубежья: Белоруссия, Украина, Казахстан