Добро пожаловать на http://vipplan.ru

Випплан Кингисепп - это тысячи проектов домов в нашем каталоге!

Вы всегда сможете найти для себя проект дома вашей мечты! Даже если этого не случилось, мы готовы в любую минуту предложить проект индивидуального дома.

Забыли пароль?
Вы еще не регистрировались?

Перейдите по ссылке ниже на страницу регистрации.

Регистрация...

Внимание!!!

В проектную документацию могут быть внесены изменения любой сложности, в соответствии в Вашими пожеланиями!

Полезные статьи

Приготовление раствора для наливного пола

Если вы хотите чтобы пол получился ровным, наливные полы – лучший вариант. Особое внимание следует уделить приготовлению раствора. А все потому, что после нанесения на цементную стяжку или бетонное основание внести коррективы или изменить что-либо уже не получится. Поэтому к замешиванию раствора стоит подходить очень внимательно....

Уклон кровли дома

Чтобы вода быстрее уходила с кровли Вашего дома, скатам необходимо придать уклон, который выражающийся в процентах или градусах и измеряющийся геодезическими инструментами. Уклон кровли обозначает угол наклона ската к горизонту. Чем больше уклон, тем круче крыша. У новомодных зданий наклон кровли делают не очень большим....

Проекты домов и коттеджей > Каталог проектов домов > Проект двухэтажного дома с гаражом Vg30

Проект двухэтажного дома с гаражом Vg30

Проект двухэтажного дома с гаражом
Зарегистрируйтесь

Проект № Vg30


Техническое описание
Общая площадь: 314 м2
Жилая площадь: 157 м2
Размеры дома: 23м×19м
Кол-во комнат: 7
Цокольный этаж: нет
Гараж: есть
Мансарда: нет

Kонструкция

Архитектурный раздел
Конструктивный раздел
АР+КР - 84 000 (Со скидкой 20%)
Описание
Индивидуальный проект двухэтажного жилого дома с размерами здания 22,32 x 18,95м.
Наружная отделка здания - облицовочный кирпич.
Отделка вентканалов и дымоходов - клинкерная плитка (в цвет кирпича).
Цоколь - отделка камнем.
Фундамент - монолитная ж/б плита (под всей площадью дома).
Наружные стены: газобетонные блоки, утеплитель -экструдированный пенополистирол, вент.зазор, облицовочный кирпич.
Внутренние стены - газобетонные блоки.
Перегородки: кирпич забутовочный.
Перемычки монолитные и сварные из профиля проката.
Пол первого этажа - пол по плите.
Межэтажное перекрытие - сборные ж/б плиты перекрытия.
Чердачное перекрытие - по деревянным балкам с использованием теплоизоляционных материалов типа "URSA" в межбалочном пространстве.
Крыша многоскатная. Покрытие - гибкая черепица.
Лестница металлическая, выполняется по индивидуальному заказу.
Окна - металлопластиковые, выполненные по индивидуальному заказу.
Технико-экономические показатели
Наименование
Ед. изм.
Площадь
Примечание
1
Общая площадь помещений
м2
313,77
 
2
Жилая площадь помещений
м2
156,80
 
3
Этажность
 
2
 
4
Высота здания
м
9,79
От отметки ур.земли до конька

 

Генплан застройки участка / Паспорт проекта 7000 руб / 10000 руб
Инженерный раздел (полный) 157000 руб
Смета на строительство 78500 руб
Теплотехнический расчет материалов стен Бесплатно
Стоимость проекта со незначительнми изменениями 97150 руб
Стоимость проекта со средними изменениями* 120700 руб
Стоимость проекта со значительными изменениями** 127000 руб

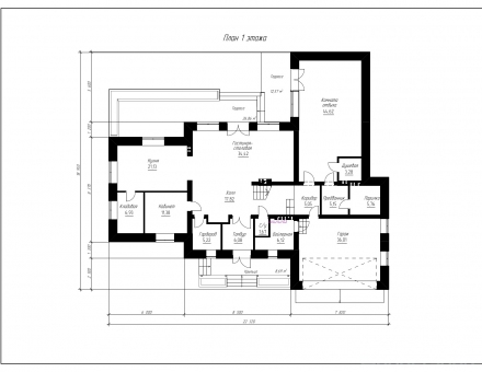
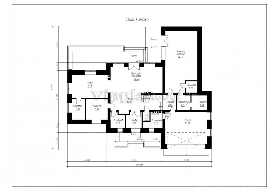
План первого этажа



Проект двухэтажного дома с гаражом

Проект двухэтажного дома с гаражом

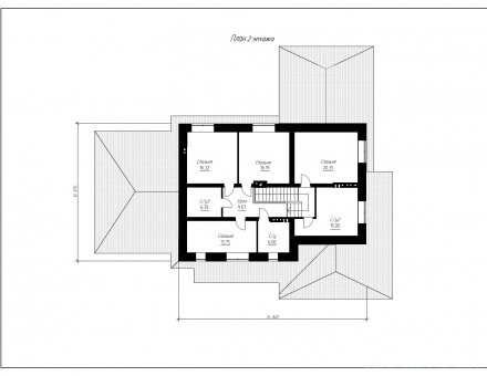
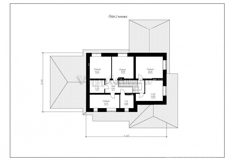
План второго этажа



Проект двухэтажного дома с гаражом Проект двухэтажного дома с гаражом Проект двухэтажного дома с гаражом Проект двухэтажного дома с гаражом
Внесение изменений и привязка к участку строительства

В любой из проектов от компании VIPplan - Кингисепп по вашему желанию могут быть внесены изменения в материалы стен, материалы наружной отделки дома, а также будет произведена адаптация проекта под конкретный регион строительства (с учетом грунтов региона, геологических особенностей вашего участка и местных климатических условий) - БЕСПЛАТНО !!! (кроме проектов со скидкой и проектов наших партнеров).

Любой из проектов, размещенных на сайте kingisepp.vipplan.ru мы можем выполнить из требуемых вам строительных материалов: ячеистый бетон (газобетон, пеноблок), керамоблок, кирпич, шлакоблок, бетонный блок, дерево (брус, клееный брус), каркасная технология (деревянный каркас, металлокаркас (ЛСТК)).

Фасад дома и его наружную отделку так же возможно выполнить с применением различных облицовочных материалов: структурной штукатурки, (с утеплителем и без), сайдингом (пластиковый или металлосайдинг), фиброплитами, кирпича.

 
6 Избранные
проекты

Доставка проектов по России: Москва (Московская область), Санкт-Петербург (Ленинградская область), Краснодар, Ростов-на-Дону, Ставрополь, Сочи, Волгоград, Новосибирск, Белгород, Брянск, Воронеж, Саратов, Хабаровск, Астрахань, Нальчик, Владикавказ, Екатеринбург, Тюмень, Самара, Нижний Новгород, Казань, Пермь, Уфа, Челябинск, Красноярск, Ханты-Мансийск, Иркутск, Курган, Оренбург, Омск, Томск, Барнаул, Новокузнецк, Кемерово, Абакан, Чита, Якутск, Южно-Сахалинск, Петропавловск-Камчатский и страны ближнего зарубежья: Белоруссия, Украина, Казахстан