Добро пожаловать на http://vipplan.ru

Випплан Кингисепп - это тысячи проектов домов в нашем каталоге!

Вы всегда сможете найти для себя проект дома вашей мечты! Даже если этого не случилось, мы готовы в любую минуту предложить проект индивидуального дома.

Забыли пароль?
Вы еще не регистрировались?

Перейдите по ссылке ниже на страницу регистрации.

Регистрация...

Внимание!!!

В проектную документацию могут быть внесены изменения любой сложности, в соответствии в Вашими пожеланиями!

Полезные статьи

Закладка фундамента дома

Закладка фундамента является одним из первых и самых главных этапов строительства любого дома. Все здание опирается именно на эту часть конструкции. Поэтому главная функция фундамента заключается в том, чтобы нести на себе весь вес несущих стен и кровли, а значит предотвращать появление перекоса стен, проседание сооружения, что неизбежно приводит к образованию трещин в стенах здания и в фундаменте....

Перекрытия в доме

Перекрытия – одно из важнейших составляющих строящегося дома. Это горизонтальная внутренняя защитная конструкция, разделяющая по уровню смежные помещения дома. По назначению выделяют подвальные, межэтажные и чердачные перекрытия. При проектировании домов и зданий различного назначения, требования к межэтажным перекрытиям определяются их местоположением и функциями разделяемых помещений: надподвальные, межэтажные, чердачные и т.д....

Проекты домов и коттеджей > Каталог проектов домов > Одноэтажный дом с подвалом, террасой и вторым светом Vg3735

Одноэтажный дом с подвалом, террасой и вторым светом Vg3735

Одноэтажный дом с подвалом, террасой и вторым светом
Зарегистрируйтесь

Проект № Vg3735


Техническое описание
Общая площадь: 271.93 м2
Жилая площадь: 74.53 м2
Высота здания: 6.67 м
Размеры дома: 14.87м×19.06м
Кол-во комнат: 4
Цокольный этаж: есть
Гараж: нет
Мансарда: нет

Kонструкция
Фундамент: ленточный
Перекрытия: сборные плиты, деревянные балки
Материал стен: Газобетон

Архитектурный раздел
Конструктивный раздел
АР+КР - 72 000 (Со скидкой 20%)
Проект одноэтажного дома с подвалом, террасой и вторым светом с размерами здания 14,87 х 19,06 м. Фундамент – ленточный из блоков ФБС с подошвой. Наружные стены – газобетонные блоки с утеплением пенополистиролом, вентилируемым воздушным зазором и отделкой облицовочным кирпичом. Внутренние стены – газобетонные блоки. Перегородки – пустотелый кирпич. Пол подвала – по грунту. Пол 1 этажа – по сборным плитам. Чердачное перекрытие – деревянные балки с теплошумоизоляцией в межбалочном пространстве. Крыша четырехскатная. Кровля – металлочерепица. Кровля над террасой - профлист. Окна — металлопластиковые.
Генплан застройки участка / Паспорт проекта 7000 руб / 10000 руб
Инженерный раздел (полный) 136000 руб
Смета на строительство 68000 руб
Теплотехнический расчет материалов стен Бесплатно
Стоимость проекта со незначительнми изменениями 83200 руб
Стоимость проекта со средними изменениями* 103600 руб
Стоимость проекта со значительными изменениями** 109000 руб

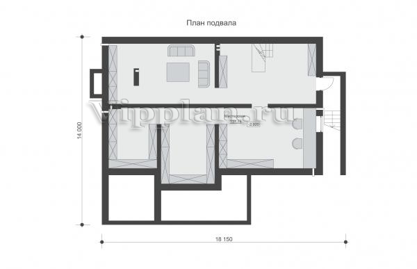
План цокольного этажа


Мастерская - 137,74 м2

План первого этажа


Прихожая - 9,07 м2
Гардероб - 6,99 м2
Спальня - 16,56 м2
С/у - 3,87 м2
Ванная - 7,38 м2
Спальня - 16,56 м2
Спальня - 18,00 м2
Гостиная - 23,41 м2
Кухня - 16,13 м2
Бойлерная - 5,08 м2
Холл - 11,14 м2
Одноэтажный дом с подвалом, террасой и вторым светом Одноэтажный дом с подвалом, террасой и вторым светом Одноэтажный дом с подвалом, террасой и вторым светом Одноэтажный дом с подвалом, террасой и вторым светом

Модификации проектов

Внесение изменений и привязка к участку строительства

В любой из проектов от компании VIPplan - Кингисепп по вашему желанию могут быть внесены изменения в материалы стен, материалы наружной отделки дома, а также будет произведена адаптация проекта под конкретный регион строительства (с учетом грунтов региона, геологических особенностей вашего участка и местных климатических условий) - БЕСПЛАТНО !!! (кроме проектов со скидкой и проектов наших партнеров).

Любой из проектов, размещенных на сайте kingisepp.vipplan.ru мы можем выполнить из требуемых вам строительных материалов: ячеистый бетон (газобетон, пеноблок), керамоблок, кирпич, шлакоблок, бетонный блок, дерево (брус, клееный брус), каркасная технология (деревянный каркас, металлокаркас (ЛСТК)).

Фасад дома и его наружную отделку так же возможно выполнить с применением различных облицовочных материалов: структурной штукатурки, (с утеплителем и без), сайдингом (пластиковый или металлосайдинг), фиброплитами, кирпича.

 
6 Избранные
проекты

Доставка проектов по России: Москва (Московская область), Санкт-Петербург (Ленинградская область), Краснодар, Ростов-на-Дону, Ставрополь, Сочи, Волгоград, Новосибирск, Белгород, Брянск, Воронеж, Саратов, Хабаровск, Астрахань, Нальчик, Владикавказ, Екатеринбург, Тюмень, Самара, Нижний Новгород, Казань, Пермь, Уфа, Челябинск, Красноярск, Ханты-Мансийск, Иркутск, Курган, Оренбург, Омск, Томск, Барнаул, Новокузнецк, Кемерово, Абакан, Чита, Якутск, Южно-Сахалинск, Петропавловск-Камчатский и страны ближнего зарубежья: Белоруссия, Украина, Казахстан