Добро пожаловать на http://vipplan.ru

Випплан Кингисепп - это тысячи проектов домов в нашем каталоге!

Вы всегда сможете найти для себя проект дома вашей мечты! Даже если этого не случилось, мы готовы в любую минуту предложить проект индивидуального дома.

Забыли пароль?
Вы еще не регистрировались?

Перейдите по ссылке ниже на страницу регистрации.

Регистрация...

Внимание!!!

В проектную документацию могут быть внесены изменения любой сложности, в соответствии в Вашими пожеланиями!

Полезные статьи

Уклон кровли дома

Чтобы вода быстрее уходила с кровли Вашего дома, скатам необходимо придать уклон, который выражающийся в процентах или градусах и измеряющийся геодезическими инструментами. Уклон кровли обозначает угол наклона ската к горизонту. Чем больше уклон, тем круче крыша. У новомодных зданий наклон кровли делают не очень большим....

Сборные фундаменты

В наше время все большую популярность при строительстве дома приобретают сборные бетонные и железобетонные блоки. Их использование значительно сокращает время работ и снижает их трудоемкость....

Проекты домов и коттеджей > Каталог проектов домов > Двухэтажный дом с большой террасой над гаражом Vg1040

Двухэтажный дом с большой террасой над гаражом Vg1040

Двухэтажный дом с большой террасой над гаражом
Зарегистрируйтесь

Проект № Vg1040


Техническое описание
Общая площадь: 197.96 м2
Жилая площадь: 83.93 м2
Высота здания: 8.91 м
Размеры дома: 14.6м×15.4м
Кол-во комнат: 5
Цокольный этаж: нет
Гараж: нет
Мансарда: нет

Kонструкция
Фундамент: Ленточный
Перекрытия: Керамические блоки
Материал стен: Керамоблок

Архитектурный раздел
Конструктивный раздел
АР+КР - 60 000 (Со скидкой 20%)
Проект индивидуального двухэтажного жилого дома с размерами здания 14,60 x 15,40 м. Наружная отделка здания – штукатурка, фиброцементные плиты, деревянные панели. Фундамент – ленточный монолитный ж/б под несущими стенами. Наружные стены – из керамического блока KeraKam с облицовкой штукатуркой. Внутренние стены - из керамического блока KeraKam. Перегородки – из керамического блока KeraKam. Пол первого этажа, межэтажное перекрытие - ж/б плиты перекрытия. Чердачное перекрытие - деревянные балки. Крыша многоскатная. Кровля – битумная черепица. Окна — металлопластиковые.
Генплан застройки участка / Паспорт проекта 7000 руб / 10000 руб
Инженерный раздел (полный) 99000 руб
Смета на строительство 49500 руб
Теплотехнический расчет материалов стен Бесплатно
Стоимость проекта со незначительнми изменениями 70050 руб
Стоимость проекта со средними изменениями* 84900 руб
Стоимость проекта со значительными изменениями** 88900 руб

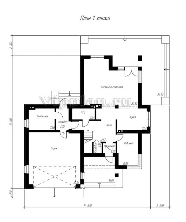
План первого этажа


Прихожая - 1,77 м2
Холл - 12,57 м2
Кухня - 9,62 м2
Гостиная - 30,50 м2
Кабинет - 8,97 м2
С/у - 3,44 м2
Коридор - 3,75 м2
Бойлерная - 7,46 м2
Гараж - 36,13 м2

Двухэтажный дом с большой террасой над гаражом

Двухэтажный дом с большой террасой над гаражом

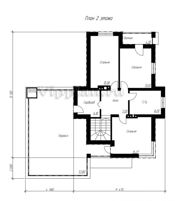
План второго этажа


Холл - 7,05 м2
Спальня - 15,58 м2
Спальня - 13,61 м2
С/у - 8,20 м2
Спальня - 15,27 м2
Гардероб - 6,10 м2
Двухэтажный дом с большой террасой над гаражом Двухэтажный дом с большой террасой над гаражом Двухэтажный дом с большой террасой над гаражом Двухэтажный дом с большой террасой над гаражом

Модификации проектов

Внесение изменений и привязка к участку строительства

В любой из проектов от компании VIPplan - Кингисепп по вашему желанию могут быть внесены изменения в материалы стен, материалы наружной отделки дома, а также будет произведена адаптация проекта под конкретный регион строительства (с учетом грунтов региона, геологических особенностей вашего участка и местных климатических условий) - БЕСПЛАТНО !!! (кроме проектов со скидкой и проектов наших партнеров).

Любой из проектов, размещенных на сайте kingisepp.vipplan.ru мы можем выполнить из требуемых вам строительных материалов: ячеистый бетон (газобетон, пеноблок), керамоблок, кирпич, шлакоблок, бетонный блок, дерево (брус, клееный брус), каркасная технология (деревянный каркас, металлокаркас (ЛСТК)).

Фасад дома и его наружную отделку так же возможно выполнить с применением различных облицовочных материалов: структурной штукатурки, (с утеплителем и без), сайдингом (пластиковый или металлосайдинг), фиброплитами, кирпича.

 
6 Избранные
проекты

Доставка проектов по России: Москва (Московская область), Санкт-Петербург (Ленинградская область), Краснодар, Ростов-на-Дону, Ставрополь, Сочи, Волгоград, Новосибирск, Белгород, Брянск, Воронеж, Саратов, Хабаровск, Астрахань, Нальчик, Владикавказ, Екатеринбург, Тюмень, Самара, Нижний Новгород, Казань, Пермь, Уфа, Челябинск, Красноярск, Ханты-Мансийск, Иркутск, Курган, Оренбург, Омск, Томск, Барнаул, Новокузнецк, Кемерово, Абакан, Чита, Якутск, Южно-Сахалинск, Петропавловск-Камчатский и страны ближнего зарубежья: Белоруссия, Украина, Казахстан