Добро пожаловать на http://vipplan.ru

Випплан Кингисепп - это тысячи проектов домов в нашем каталоге!

Вы всегда сможете найти для себя проект дома вашей мечты! Даже если этого не случилось, мы готовы в любую минуту предложить проект индивидуального дома.

Забыли пароль?
Вы еще не регистрировались?

Перейдите по ссылке ниже на страницу регистрации.

Регистрация...

Внимание!!!

В проектную документацию могут быть внесены изменения любой сложности, в соответствии в Вашими пожеланиями!

Полезные статьи

Монолитный коттедж с несъемной опалубкой

Перед тем, как вы задумаетесь о строительстве своего коттеджа, необходимо выбрать, сами вы будете руководить строительством, нанимать разных рабочих, или будете обращаться в строительную фирму, и заключать с ними договор. Но даже к этому вопросу нужно подходить правильно, обдумав все плюсы и минусы выбора....

Типы и разновидности кровли

Кровля состоит из сплошного настила, стяжки и обрешетки, поддерживающих стропила и несколько слоев изоляции, призванных уберечь кровельное пространство от негативного воздействия пара и влаги....

Проекты домов и коттеджей > Каталог проектов домов > Проект живописного дома Vg1371

Проект живописного дома Vg1371

Проект живописного дома
Зарегистрируйтесь

Проект № Vg1371


Техническое описание
Общая площадь: 163.16 м2
Жилая площадь: 77.19 м2
Высота здания: 9.19 м
Размеры дома: 18.24м×12.14м
Кол-во комнат: 5
Цокольный этаж: нет
Гараж: нет
Мансарда: нет

Kонструкция
Фундамент: Монолитная плита
Перекрытия: Сборные ж/б плиты
Материал стен: Газобетон

Архитектурный раздел
Конструктивный раздел
АР+КР - 56 000 (Со скидкой 20%)
Проект индивидуального двухэтажного жилого дома с размерами здания 18,24 x 12,14 м. Наружная отделка здания – теплая штукатурка. Фундамент - монолитная плита ( под всей площадью дома). Наружные стены – газобетонные блоки с отделкой теплой штукатуркой. Внутренние стены - газобетонные блоки Перегородки -из силикатных блоков. Снаружи вентканалы и дымоходы - штукатурка. Перемычки - монолитные и сварные из профиля проката. Перекрытие межэтажное – сборные ж/б плиты перекрытия.Чердачное перекрытие- по деревянным балкам с использованием теплошумоизоляционных материалов типа "URSA" в межбалочном пространстве. Пол первого этажа - пол по монолитной плите. Крыша многоскатая. Кровля – полимерпесчаная черепица. Окна - металлопластиковые, выполненные по индивидуальному заказу.
Генплан застройки участка / Паспорт проекта 7000 руб / 10000 руб
Инженерный раздел (полный) 81500 руб
Смета на строительство 40750 руб
Теплотехнический расчет материалов стен Бесплатно
Стоимость проекта со незначительнми изменениями 65900 руб
Стоимость проекта со средними изменениями* 78200 руб
Стоимость проекта со значительными изменениями** 81400 руб

План первого этажа


Тамбур — 2,24 кв м
Холл — 13,99 кв м
Гостиная — 25,70 кв м
Кухня — 9,56 кв м
Кабинет — 9,66 кв м
С/у — 3,51 кв м
Бойлерная — 6,50 кв м
Гараж — 18,70 кв м

Проект живописного дома

Проект живописного дома

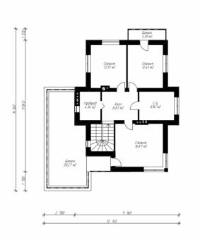
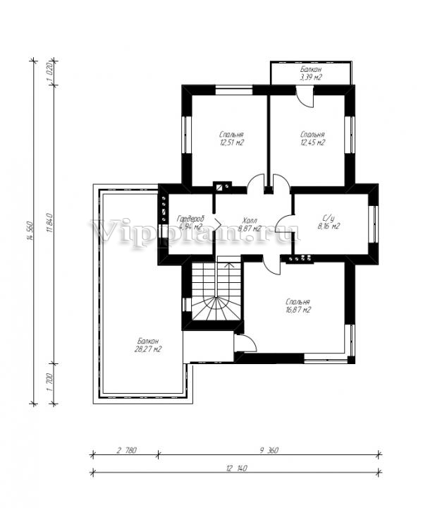
План второго этажа


Холл — 8,87 кв м
Спальня — 12,51 кв м
Спальня — 12,45 кв м
С/у — 8,16 кв м
Гардероб — 4,94 кв м
Балкон — 3,39 кв м
Спальня — 16,87 кв м
Балкон — 28,27 кв м
Проект живописного дома Проект живописного дома Проект живописного дома Проект живописного дома

Модификации проектов

Внесение изменений и привязка к участку строительства

В любой из проектов от компании VIPplan - Кингисепп по вашему желанию могут быть внесены изменения в материалы стен, материалы наружной отделки дома, а также будет произведена адаптация проекта под конкретный регион строительства (с учетом грунтов региона, геологических особенностей вашего участка и местных климатических условий) - БЕСПЛАТНО !!! (кроме проектов со скидкой и проектов наших партнеров).

Любой из проектов, размещенных на сайте kingisepp.vipplan.ru мы можем выполнить из требуемых вам строительных материалов: ячеистый бетон (газобетон, пеноблок), керамоблок, кирпич, шлакоблок, бетонный блок, дерево (брус, клееный брус), каркасная технология (деревянный каркас, металлокаркас (ЛСТК)).

Фасад дома и его наружную отделку так же возможно выполнить с применением различных облицовочных материалов: структурной штукатурки, (с утеплителем и без), сайдингом (пластиковый или металлосайдинг), фиброплитами, кирпича.

 
6 Избранные
проекты

Доставка проектов по России: Москва (Московская область), Санкт-Петербург (Ленинградская область), Краснодар, Ростов-на-Дону, Ставрополь, Сочи, Волгоград, Новосибирск, Белгород, Брянск, Воронеж, Саратов, Хабаровск, Астрахань, Нальчик, Владикавказ, Екатеринбург, Тюмень, Самара, Нижний Новгород, Казань, Пермь, Уфа, Челябинск, Красноярск, Ханты-Мансийск, Иркутск, Курган, Оренбург, Омск, Томск, Барнаул, Новокузнецк, Кемерово, Абакан, Чита, Якутск, Южно-Сахалинск, Петропавловск-Камчатский и страны ближнего зарубежья: Белоруссия, Украина, Казахстан