Добро пожаловать на http://vipplan.ru

Випплан Кингисепп - это тысячи проектов домов в нашем каталоге!

Вы всегда сможете найти для себя проект дома вашей мечты! Даже если этого не случилось, мы готовы в любую минуту предложить проект индивидуального дома.

Забыли пароль?
Вы еще не регистрировались?

Перейдите по ссылке ниже на страницу регистрации.

Регистрация...

Внимание!!!

В проектную документацию могут быть внесены изменения любой сложности, в соответствии в Вашими пожеланиями!

Полезные статьи

Приобретение земельного участка в собственность

Вы собираетесь приобрести участок. Прежде чем принять окончательное решение, тщательно изучите местность, на которой находится ваш участок, внимательно осмотрите местность. Узнайте о близости реки или других водоемах, всмотритесь в рельеф. Каждый из факторов может иметь неоспоримые плюсы, а также минусы, способные повлиять на окончательное решение. Стоит принять во внимание, что земельные участки, которые продаются «напрямую», дешевле тех, которые реализуют, пользуясь услугами посредников....

Где копать колодец?

Водоснабжение за городом - Кингисепп всегда было проблематичным. При отсутствии центрального водоснабжения остается только один выход – выкопать колодец. Водоносный пласт есть не везде. Как же определить, где копать колодец?...

Проекты домов и коттеджей > Каталог проектов домов > Проект двухэтажного дома с террасой Vg2810

Проект двухэтажного дома с террасой Vg2810

Проект двухэтажного дома с террасой
Зарегистрируйтесь

Проект № Vg2810


Техническое описание
Общая площадь: 184.2 м2
Жилая площадь: 104.03 м2
Высота здания: 9.71 м
Размеры дома: 10.96м×13.36м
Кол-во комнат: 6
Цокольный этаж: нет
Гараж: нет
Мансарда: нет

Kонструкция
Фундамент: монолитная плита
Перекрытия: сборные ж/б плиты
Материал стен: Газобетон

Архитектурный раздел
Конструктивный раздел
АР+КР - 60 000 (Со скидкой 20%)
Двухэтажный дом с террасой с размерами здания 10,96 х 13,36 м. Наружная отделка здания – облицовочный кирпич. Фундамент – монолитная ж/б плита. Наружные стены – газобетонный блок. Внутренние стены – газобетонный блок. Перегородки – рядовой кирпич. Пол первого этажа – по монолитной плите. Межэтажное и чердачное перекрытия – сборные ж/б плиты. Крыша многоскатная. Кровля – металлочерепица. Окна — металлопластиковые. Лестница – деревянная по металлическому каркасу.
Генплан застройки участка / Паспорт проекта 7000 руб / 10000 руб
Инженерный раздел (полный) 92000 руб
Смета на строительство 46000 руб
Теплотехнический расчет материалов стен Бесплатно
Стоимость проекта со незначительнми изменениями 70400 руб
Стоимость проекта со средними изменениями* 84200 руб
Стоимость проекта со значительными изменениями** 87900 руб

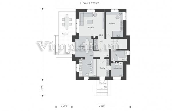
План первого этажа


Тамбур - 7,52 м2
Кухня - 10,80 м2
Столовая - 13,55 м2
Гостиная - 22,16 м2
Кабинет - 15,04 м2
Холл - 12,33 м2
С/у - 6,00 м2
Бойлерная - 5,99 м2

Проект двухэтажного дома с террасой

Проект двухэтажного дома с террасой

План второго этажа


Холл - 8,79 м2
С/у - 6,00 м2
Гардероб - 5,99 м2
Спальня - 18,74 м2
Спальня - 13,76 м2
Гардероб - 3,20 м2
Спальня - 19,29 м2
Спальня - 15,04 м2
Проект двухэтажного дома с террасой Проект двухэтажного дома с террасой Проект двухэтажного дома с террасой Проект двухэтажного дома с террасой

Модификации проектов

Внесение изменений и привязка к участку строительства

В любой из проектов от компании VIPplan - Кингисепп по вашему желанию могут быть внесены изменения в материалы стен, материалы наружной отделки дома, а также будет произведена адаптация проекта под конкретный регион строительства (с учетом грунтов региона, геологических особенностей вашего участка и местных климатических условий) - БЕСПЛАТНО !!! (кроме проектов со скидкой и проектов наших партнеров).

Любой из проектов, размещенных на сайте kingisepp.vipplan.ru мы можем выполнить из требуемых вам строительных материалов: ячеистый бетон (газобетон, пеноблок), керамоблок, кирпич, шлакоблок, бетонный блок, дерево (брус, клееный брус), каркасная технология (деревянный каркас, металлокаркас (ЛСТК)).

Фасад дома и его наружную отделку так же возможно выполнить с применением различных облицовочных материалов: структурной штукатурки, (с утеплителем и без), сайдингом (пластиковый или металлосайдинг), фиброплитами, кирпича.

 
6 Избранные
проекты

Доставка проектов по России: Москва (Московская область), Санкт-Петербург (Ленинградская область), Краснодар, Ростов-на-Дону, Ставрополь, Сочи, Волгоград, Новосибирск, Белгород, Брянск, Воронеж, Саратов, Хабаровск, Астрахань, Нальчик, Владикавказ, Екатеринбург, Тюмень, Самара, Нижний Новгород, Казань, Пермь, Уфа, Челябинск, Красноярск, Ханты-Мансийск, Иркутск, Курган, Оренбург, Омск, Томск, Барнаул, Новокузнецк, Кемерово, Абакан, Чита, Якутск, Южно-Сахалинск, Петропавловск-Камчатский и страны ближнего зарубежья: Белоруссия, Украина, Казахстан